廣州萬科云,‘實心’變‘空心’
作者:建日筑聞 來源:建日筑聞


廣州萬科云起初的定位就包含三種辦公的類型,即聯合共享辦公、擴張型機構集群辦公和明星企業小總部辦公,后來隨著項目的推進,逐步演變成創意設計公社,集展覽發布、會議論壇、企業孵化、商業配套和創意集市與創意辦公社區相關的空間內容,形成一個辦公生態的有機社區。



基于大量的設計研究我們得出,創意產業類項目很多都是廠房改造的,創意產業人員對于Warehouse空間類型情有獨鐘,究其原因應該是其開敞的平面、靈活的空間和外露的結構。為此,我們首先確定了開闊大平層的空間類型。

垂直廠房圖示


為了在高層建筑中實現類似低層廠房建筑的街道公共空間,我們打開建筑的“核心”,把一個“大核”拆解成幾個“小核”,讓建筑原本的“實心”變成“空心”,有更大的空間撐滿可建設用地,樓板圍繞四個核心筒像搭積木一樣展開,并在頂層預留了未來企業擴展的空間(后續也確實被入駐企業改造擴建了)。

分核設計概念的三維成形過程

南北剖******




原本單調孤立的樓板產生了空間關系,低層建筑的街道公共空間出現在高層的結構中,同時,內側的辦公空間也有自然采光和通風,各層大平層均可雙側采光,這里辦公的人,也有機會看到彼此,提升了場所認同感。


建筑的入口設計,前期要提供銷售展廳空間,后期既要增加人氣,保持首層的公共性,又要確保辦公場所進出的安全,為此,我們將大廳的南北打通,形成穿堂的人流,增加內部商業的可達性;同時北部大廳的入口設置在西側,提供一個可以完整獨立使用的臨時銷售大廳。


設計按照每三層共享一個大平臺的空間邏輯,隨著樓層的變化,依次在四個面的不通高度位置出現。我們在方案擴初階段采用ArchiCAD的BIM建模型方式,全部外墻圖紙由三維模型直接導出成圖,所有空調室外機以及頂板等二次結構一體澆筑成形。

夏天自然光照度模擬

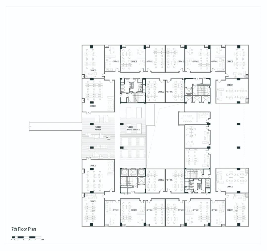
項目圖紙

概念草圖






項目信息
建筑師:iDEA匯城建筑設計(香港)有限公司
地址:華觀路,天河區,廣州市,中國
項目年份:2019
攝影師:吳清山,廣州萬科云城
建筑面積:36000.0 m2
主創建筑師:高巖,郭馨
設計團隊:侯天天, 熊偉, 吳蘇萌, 許宏杰, 周運, William Louie
.END.
注:本文轉載自建日筑聞,版權歸原作者所有。

