與湛藍的天空相互對話 - ‘René Beauverie’ 學校
作者:gooood谷德設計網 來源:gooood谷德設計網
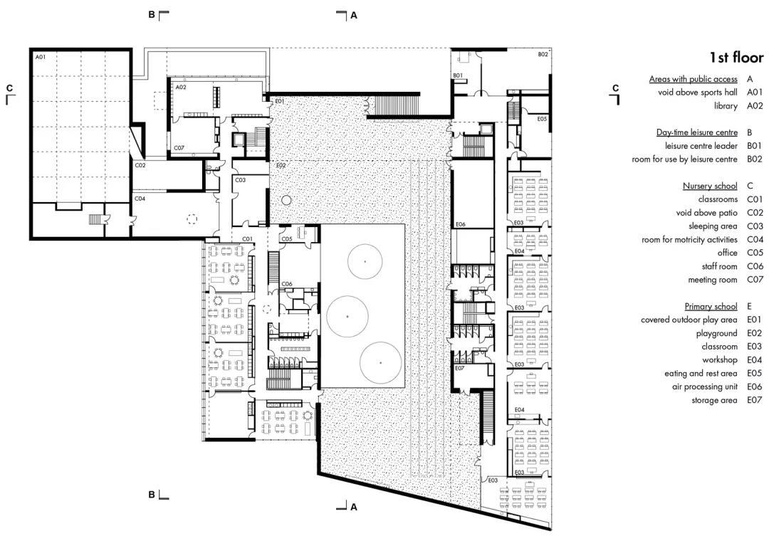
作為城市更新計劃的一部分, Vaulx-en-Velin的市政部門決定將René Beauverie學校與多樣的功能空間進行合并以提供更多社區服務,包括托兒所、舞廳、體育館、小型圖書館和餐廳。
▼臨街立面
建筑擁有高度統一的外觀,且明確地展示出其公共設施的身份。學校的教室沿著40米長的場地分布,仿佛坐落在一座橋上。
▼庭院視角
▼建筑外觀

建筑的不同入口集中在一個共享的前院,功能空間的布局復雜而又連接得十分流暢。
▼樓梯
首層空間容納了育嬰室、體育館和幼兒園。小學設置在二層,學生們在進校之前需要先經由寬闊的樓梯行至上方樓層的庭院區域。
▼朝向庭院的幼兒園

▼位于二層的小學
▼走廊
建筑體塊包含了多個凹進空間。多樣化的庭院和天井將自然光引入建筑的核心地帶,為室內增添了柔和的氣息。


▼體育館
深淺不一的藍色有時會引發預期之外的連接。白色的區域被變化的藍色映照,隨著光線和日照角度的變化產生深淺不一的觀感,從而不再只呈現為單一的白色。類似的色彩和光線變化會持續一整天的時間,多重的反射將為該區域的建筑賦予一種動態的感覺。
▼深淺不一的藍色隨光線不斷變化


藍色成為了項目中的一個必然選擇,使建筑物與地平線和湛藍的天空相互對話。雖然建筑中的空間是復雜的,卻仍然保持著相輔相成的關系。
項目圖紙
▼首層平面圖

▼二層平面圖
▼三層平面圖
▼立面圖
▼剖面圖
.END.
注:本文轉載自gooood谷德設計網,版權歸原作者所有。

