橫看成嶺側成峰:皮劃艇訓練基地
作者:gooood谷德設計網 來源:gooood谷德設計網
奧古斯圖夫皮劃艇基地于近日正式落成,該項目是對三年前一次優勝競賽方案的實施。競賽的目的是為水上運動中心(皮劃艇運動員基地)和鄰近娛樂場所的整體發展設計一套方案,已完工的皮劃艇基地在方案中處于第一階段。截至目前,包括一個多功能運動場、水泵跑道、游樂場以及游客休閑空間在內的內塔河B?onie項目也即將投入建造。
▼項目及周邊概覽
▼河對岸遠眺
▼項目鳥瞰
度假村位于奧古斯圖夫市中心,內塔河西部大道上。而皮劃艇基地則坐落在風景如畫的、屬于古老的奧古斯托運河一部分的河灣地帶。環繞在建筑周圍的公共休閑區受到了當地人和游客的熱烈歡迎。
建筑外立面由天然西伯利亞落葉松板制成。水平排列的木板增強了體量的動態效果,自然的色彩讓建筑更和諧地融入周邊景觀。皮劃艇基地的屋頂擁有大片綠植,室內設計保持了嚴謹、簡約的風格。
▼項目正立面
▼水平排列的天然西伯利亞落葉松板增強了體量的動態效果
水上運動中心包括兩個設施:皮劃艇基地和帶有平臺的船庫。 皮劃艇基地建筑是單層的,看起來像一個三角形。平屋頂在縱向方位稍有傾斜,不同的高度對應著相應的功能區:倉庫和工作室部分較高,其余部分較低。建筑的總體造型與運動和動力有關,傾斜的墻壁創造了獨特的拱廊,突出了入口、塑造了景觀,也讓建筑的視覺效果隨著人的觀看方位而變化。
▼平屋頂在縱向方位稍有傾斜
▼傾斜的墻壁創造了獨特的拱廊
▼獨特的拱廊突出了入口
▼入口區域
▼拱廊內部視角
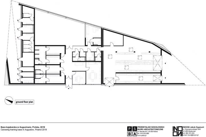
基地建筑是當地皮劃艇俱樂部的訓練和會議場所,也是組織比賽和體育賽事的場所。建筑內設有培訓設施、衣帽間、全景水景健身房、俱樂部的房間、運動器材倉庫和公共衛生間。機庫建筑有兩個存放水上設備的平臺、一個屋頂支架和摩托艇存儲空間。
▼健身房
▼皮劃艇存放室
▼室內空間
▼濱河夜景
▼夜幕下的屋頂
▼夜幕下的建筑
項目圖紙
▼場地平面
▼項目平面
▼立面圖
▼剖面圖
.END.
注:本文轉載自gooood谷德設計網,版權歸原作者所有。

