gmp新作首發 | 蘇州第二圖書館
作者:gooood谷德設計網 來源:gooood谷德設計網
即將在2019年內對公眾開放的蘇州第二圖書館位于蘇州古城以北,它將為蘇州這座古老而傳統的文化書城帶來的不僅僅是一座新圖書館。這座掩映在書香公園景觀中的新圖書館中,還設有若干特色閱覽室、展覽空間等文化設施。這座圖書館最主要的特色是擁有國內首座藏書容量七百萬冊的先進的大型智能書庫。gmp· 馮·格康,瑪格及合伙人建筑師事務所在2014年贏得了圖書館設計競賽,并獲得設計委托,與東南大學建筑設計研究院共同完成設計。
▼東立面夜景
蘇州第二圖書館在傳統圖書借閱功能之外,還為蘇州市帶來了國內首座配備了最先進的地上智能書庫的 圖書館,藏書量將達700萬冊。高36.8米的圖書館坐落于新建的書香公園景觀中,還設有蘇州文學館、設計圖 書館、數字圖書館、音樂圖書館、兒童圖書館等特色館中館,以及研討、展覽空間等公共文化設施。
▼西側視角
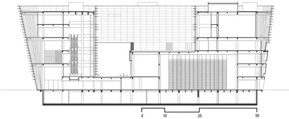
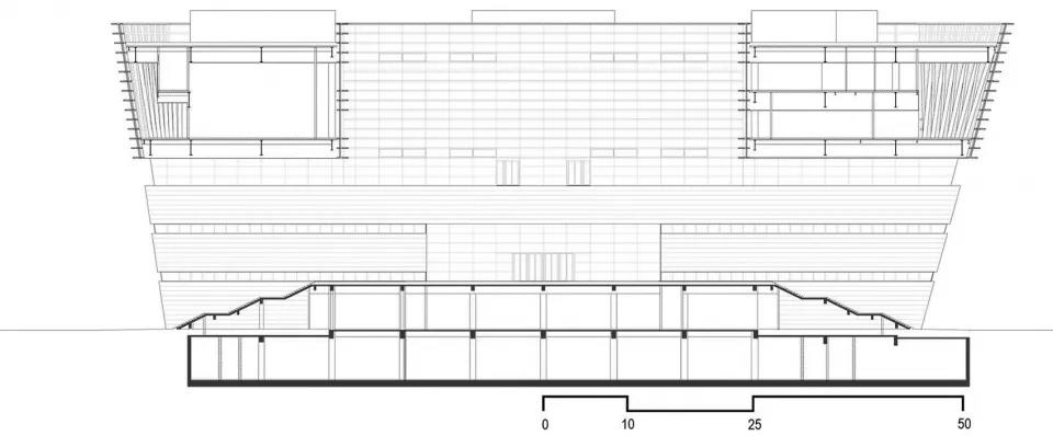
逐層向上旋轉傾斜的建筑形式與輕質遮陽鋁板構成的橫向立面線條賦予了圖書館獨特的建筑造型。建筑底層面積被壓縮,且平面輪廓與周邊街道平行,在底層釋放出更多步行空間與景觀空間。建筑體量向上逐層旋轉及外傾,使得上部樓層擁有朝向湖面和城市的更佳視野, 以及更寬敞的閱覽空間。圖書館的造型意向也可類比于旋轉疊放的紙張或書籍。
▼橫向立面線條
▼輕質遮陽鋁百葉
根據公共空間與書庫的不同使用要求,圖書館建筑被分為兩部分,它們在基座與上層空間中相互連接。書庫部分厚實的外墻設計采用水平線條木紋肌理的清水混凝土,與通透的玻璃幕墻包裹的公共區域相互交疊。立面較為封閉的智能書庫位于地塊北側,而采用通透立面設計的閱覽室則位于南側,朝向城市景觀。地上六層建筑層高均為5.7米。
▼圖書館公共空間
▼門廳空間
▼兒童圖書閱覽室
▼設計圖書館閱覽室
兩部分建筑體量,被建筑東西方向軸線上的公共廣場分隔開,圖書館主入口也位于這個被抬高的廣場兩側,可經由大臺階到達廣場,進入圖書館南北兩區,同時可由廣場到達書香公園。通過提供穿越場地的捷徑,引導眾多市民進入這兩部分建筑,建立了建筑內外空間的功能性連接,將圖書館及其多元化的文化活動,整合到城市結構中。
▼通往公共廣場方向
▼相互連接的兩個建筑體量
▼鳥瞰夜景
項目圖紙
▼總平面圖
▼底層平面圖
▼南北向剖面
▼東西向剖面
設計競賽:2014年一等獎
設計:曼哈德·馮·格康和尼古勞斯·格茨以及瑪德琳·唯斯
競賽階段項目負責人:孔晡虹,馬丁·弗里德里希
競賽階段設計團隊:任培英,法比安·施里特,闞立婧,穆斯特法·奧貝德,王軼群,張博維
實施階段負責人:嚴律己
實施階段設計團隊:白云潔,馬丁·弗里德里希,孔晡虹,李晨,錢烈,任培英,孫煜,徐徐鳳,姚堯,史 曉卉
建筑面積:45,300m2
建設周期:2015年-2019年
.END.
注:本文轉載自gooood谷德設計網,版權歸原作者所有。

