上海托馬斯實驗學校新建工程
作者:gooood谷德設計網 來源:gooood谷德設計網
序
未來,桃浦地區將成為的工作-生活-休閑-學習一體化新城區——桃浦科技智慧城,托馬斯實驗學校作為新區最先建設的重點學校,猶如新區中投入的一滴先進教育理念之水,激起層層漣漪,作為源頭帶動周邊地塊和整個新區實現科技、智慧、生態的規劃目標。
▼校園整體鳥瞰
▼小學部鳥瞰
設計理念
理念一、融合不同文化 教學空間滿足國內義務教育和國際學校雙重需求,生活設施和公共空間兼顧中西方不同文化;
理念二、促進積極交流 室內中庭、室外連廊、屋頂花園、各種形式的庭院和廣場營造出立體多樣化的校園公共空間—為積極交流創造硬件條件;
理念三、培養主動創造 設置更多選修教室、多功能教室、討論室,提供更多的選修課程或自組團隊研究空間;公共空間多功能使用,研討、閱覽、餐飲、休憩、活動、展示,激發學生主動的創新動力;
理念四、激發生命活力 充分利用地下空間和屋頂空間提供更多戶外活動空間和體驗,營造充滿生命活力的校園文化。
▼中學部整體外觀
▼架空連廊鳥瞰
總體布局
人均用地不足、基地被城市道路割裂為南小北大的兩塊,北地塊角落有較難搬遷的通訊基站,這是本項目基地的三大不利條件。如何妥善的解決以上問題,是本項目規劃設計的出發點。
▼規劃布局生成示意
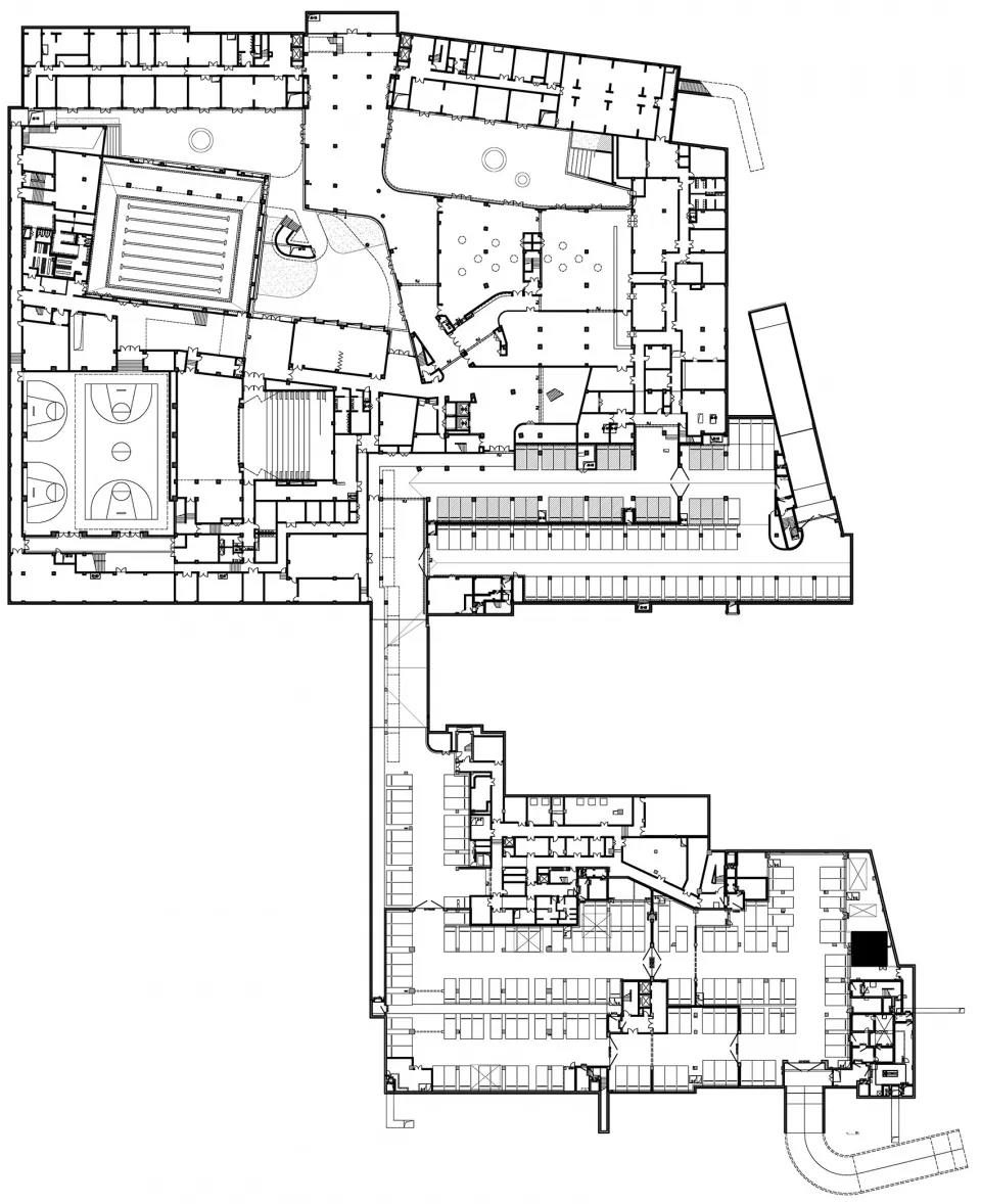
根據美式國際中學教育教學的學制特點以及住宿需要集中在中學階段的需求,將中學部設置在面積相對寬裕的北地塊,小學部設置在南地塊,二者通過過街天橋相接,結合桃清路近乎本地塊專用道路的特點,隔桃清路形成對稱布局,圍合出托馬斯實驗學校的主入口空間。宿舍設置在中學部北側,通過連廊、下沉廣場等空間與教學綜合樓及體育運動設施相連,形成相對獨立的生活區但又可以風雨無阻的到達其他設置。主要體育運動設施(體育館、游泳館等)與250環形跑道結合設置,形成北地塊體育運動區。
▼平面圖
▼中學部和小學部通過過街天橋相接
▼種滿綠植的屋頂活動空間
▼從操場望向宿舍樓和中學部
▼小學部操場
▼小學部教學樓外觀
利用地下空間減少建筑體量,減少計容面積:北地塊需容納中學部教學、生活及校區主要體育運動設置,建筑密度較大,設計利用下沉廣場將游泳館、體育館等高大空間、餐廳、宿舍等生活相關底層公共活動空間設置于地下,獲得與地面建筑一樣的舒適性,通過建筑造型、架空連廊等滿足風雨無阻的步行交通需要,同時利用建筑高差結合景觀設計,形成多樣化的人性公共活動空間。
▼下沉廣場
▼下沉廣場樓梯
▼宿舍等生活相關底層公共活動空間被設置于地下
平面布局設計
1.根據托馬斯國際學校的走班制教育模式及多樣化教育理念,采用中庭式、集中式教學綜合樓,便于師生在室內高效利用各個教學設施,不受惡劣天氣干擾;
2.教學區走廊加寬,利用教室隔墻設置儲物空間,滿足走班式教學使用特點;
3.體育館(可兼做小劇場)、食堂、多功能廳、報告廳等人流集中的公共功能集中設置在建筑底部,可通過公共門廳直接到達,既緩解消防疏散壓力,同時減少對其他教學空間的干擾。
4.兼顧國內普通中小學辦學要求,設置普通教室和專用教室,并根據其不同開間要求將普通教室合并設置于南側,專用教室合并設置于北側,長條形的布局便于未來適應不同教育模式時重新劃分不
同大小的教室。在滿足此建設標準的前提下增設更多數量的選修教室、多功能教室、討論室等
5.利用中庭、環廊、大臺階等設計連接不同高差的室內公共活動空間,紓解樓電梯豎向交通壓力,同時形成活躍的室內氣氛,提供交往和展示空間。
▼立體人行交通分析圖
▼公共大廳
▼禮堂
▼排練廳
立面材質及裝配率
主要立面材料:干掛外立面專用彩色水泥纖維板、裝飾鋁板、鋁合金波紋板、鋁合金穿孔鋁板等。本工程為預制裝配式建筑,預制裝配率42%。
▼建筑立面
▼室外景觀
▼鋁合金穿孔鋁板
▼平面圖
▼立面圖
▼剖面圖
項目名稱:上海托馬斯實驗學校新建工程
設計方:同濟大學建筑設計研究院(集團)有限公司
項目設計 & 完成年份:2012年-2017年
設計總負責人:王文勝
建筑設計:滕希,潘麗陽、張帆、孫慧芳、向萌、王宇
結構設計:沈宇宏、沈聞、陳紹琳、王濤
給排水設計:黃倍蓉、茅德福、陳夏彬
電氣設計:程貴華、沈哲杰
暖通設計:董勁松、馬曉鋼
項目地址:上海普陀區祁連山路226號
建筑面積:72149平米
.END.
注:本文轉載自gooood谷德設計網,版權歸原作者所有。

