紅嶺實驗小學,南方高密度城市里的新空間范式
作者:建日筑聞 來源:建日筑聞
山谷庭院與屋頂園藝廣場
北側山谷庭院中的的戶外劇場
高密度
高速度和高密度已成了地處亞熱地帶的南中國城市深圳的代名詞。這座沿著珠江口出海口東側濱海帶狀規劃的超級城市中的人口和建筑密度依然與日俱增,超高層建筑中的居住和工作已成為這座城市的日常。城市里的休閑、甚至教育都被帶進高空之中。
水平的高密度策略
東南側學校全景
東立面運動場下的社團活動空間
紅嶺實驗小學及其周邊城市的所在地原本是福田區西北部的一座名為安托山的小山。這座小山在城市中廣為人知是因為它供給了大量用于城市填海擴張的花崗巖土石方,以至于山體被基本削平,僅剩在小學西側的一座孤獨的小山包。其余場地在采石行動逐步退出后被平整為城市開發用地。
安托山采石山體與新校園山體形態意向
紅嶺實驗小學的建設用地約100米見方,原規劃24班小學,后因學位缺口巨大而增容至36班。現建筑面積約為原規劃的兩倍,建筑容積率超過3.0。加上用地東南角基礎對地鐵線路的避讓、道路退縮以及規范上對日照間距(雖然這在亞熱帶氣候的南方常被質疑,但到目前為止仍是強制性的要求)的規定,使得建筑設計面臨諸多空間上的挑戰。
山谷庭院中的叢生冬青
層疊校園的景觀透析
首層由南向北緩慢上升的架空活動庭園
垂直機制
因此,校園垂直向度的策略變得至關重要。超過24米的高層校舍在深圳小學建筑中已經被廣泛采用,但相應的副作用是垂直方向的交通過多以及樓梯間需要被封閉和增加前室而阻隔了小學生們的交往。建筑師在紅嶺實驗小學的設計中努力把建筑總高控制在24米以下,以創造水平交往和在建筑/景觀空間上回應對兒童的身體和心理特點。
13.8 米標高上的運動場與水平錯動的教學樓
地景公園之上的山谷庭院
通透的首層架空入口庭院
首層架空庭院區的游戲場地
在首層架空活動區嬉戲的孩子們
教學建筑幾乎滿鋪可以建設的用地,建筑分為東西高度不同的兩個半區,平面上以兩個鏡像的E字形連接。西半區利用學習單元之間所必須的間距創造出兩個曲線形邊界的“山谷”庭院。庭院下沉至地下一層,結合由道路退縮距離中取得的邊坡綠化,為地下一層的文體設施和餐廳空間爭取充足的采光和自然通風。
向城市打開的立體山谷庭院
北側山谷庭院底部的半下沉戶外劇場上方交錯的綠廊
山谷庭院
從彩色洞穴中仰望天空
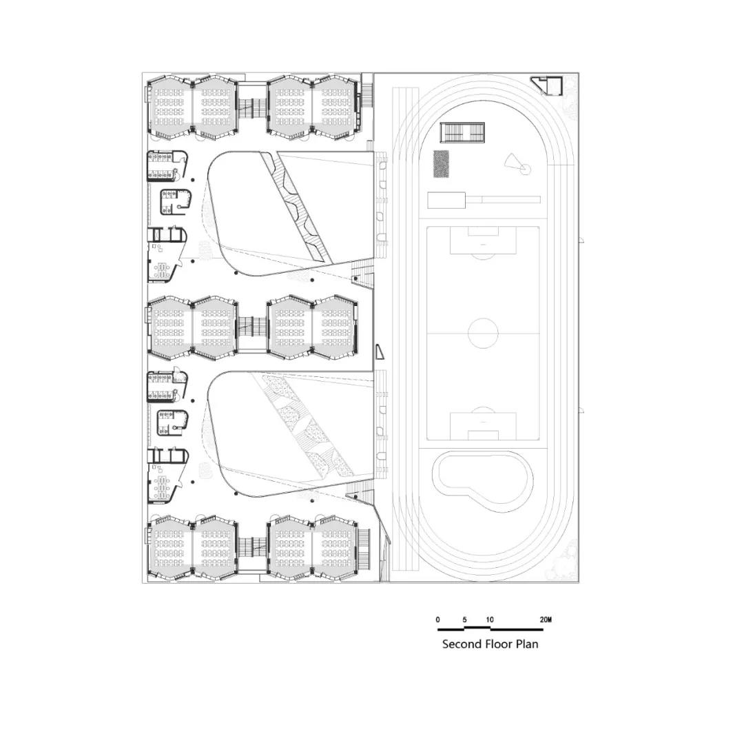
下沉庭院通過緩坡和露天階梯劇場與架空且自然起伏的首層地面連接成為一個整體的地景兒童樂園。200米環形跑道和運動場被置于建筑東半區三層屋面,與西側主教學建筑的三層平面相連,便于在二、三、四樓上課的小學生們課間到運動區域活動。
首層開放地景公園
運動場北側下方的風雨球場
二層社團活動及小劇場環繞的半地下風雨球場
運動場下方中部是可容納300人的小禮堂,懸掛于鑲嵌在地景樂園中的半戶外泳池。主教學建筑的四、五層分別為課外教室和教師辦公室,而天面屋頂是學校的園藝農場。
南側庭院中新栽的叢生冬青樹
兩排教學單元之間斜坡平臺區
山谷庭院垂直方向錯動的層板及透析空間
上下層交錯的半戶外活動空間
空中綠廊
單元組織
學習單元——傳統上稱為課室,是小學生們學習和交往基本空間細胞單元。建筑師針對深圳所在的亞熱帶氣候在水平的E字形板式樓層平面上構想了成對組合的鼓形平面的教學單元,避免課室過長的連排阻隔自然通風。每層12間課室分3列共6對布置。每個單元對組合可以通過開閉連接部的靈活隔斷以滿足合班和分班等不同空間需要。
E形教學樓層
鼓形平面展現出比傳統矩形學習單元更大的靈活性與自由度,更有利于單元課室里面的多樣化的教學模式。課室經過連接后產生的富有韻律的折曲線與各層樓板在內庭院一側的自由曲線間形成的線性活動場地,為小朋友們課間提供了一個富有活力的半戶外活動場地。
鼓形學習單元之間的流動的半戶外活動空間
鼓層平面教室的展示式門窗系統
立面秩序與學習單元的色彩錯動
建筑師利用了場地北高南低的條件讓每層的三排課室從南往北各有一米的高差,在E形平板上產生了爬升的地景式行進體驗。最終,兩個“山谷”庭院中各有兩道連接庭院兩側不同樓層的階梯式花園廊橋,在“山谷”的上空懸置了一份獨特的觀賞和游戲體驗。
教室外自由延展的戶外活動空間
在自然景觀中透析開放的教學庭院
“山谷”庭院、上下錯動的水平層板、疏松的細胞組織以及有機的綠化植入系統均是項目中回應高密度和亞熱帶的南方氣候的建造策略。而更為重要的是,建筑師希望通過紅嶺實驗小學的建造過程和結果進一步探索高速發展之后的高密度城市里公共性設施的全新空間范式。
高密度城市背景中層疊的校園
層疊交錯的立體復合空間
雨云城市背景中的山谷庭園
項目圖紙
場地平面圖
首層平面圖
二層平面圖
三層平面圖
四層及五層平面圖
剖面圖
項目信息
建筑師:源計劃建筑師事務所 O-office Architects
地址:深圳市福田區僑香四道與安托山二路交匯處東北側
項目年份:2017-2019
建筑面積:33721平方米
高度:24米
主持建筑師:何健翔,蔣瀅
項目建筑師:董京宇,陳曉霖
設計團隊:吳一飛,張婉怡,王玥,黃城強,曾維,何文康,蔡樂歡,彭偉森,何振中
.END.
注:本文轉載自建日筑聞,版權歸原作者所有。

