錢塘江畔,游園“山舍”
作者:gooood谷德設計網 來源:gooood谷德設計網
一段時間以來,在傳統經濟增長模式的導向下,全國各地的產業新城紛紛拔地而起。這些產業園區遵循著幾乎相同的底層邏輯——以最低的成本和最高的效率來圍繞生產組織的需求進行空間布局和建筑營造,大面積“兵營化”布局和“火柴盒式”空間成了最為有效的回應模式。
▼項目概覽:溫潤——傍晚中心庭院和生活服務中心
▼錢塘江畔水天一色下的園區
▼鳥瞰頂視
浙江普利斐特,作為一家在汽車科技領域的創新型企業,在委托對這一位于海寧尖山新區、毗鄰錢塘江入海口的用地進行設計的同時,提出了期望跳脫遍布其用地周圍的傳統產業園區空間模式的要求。這一期望與建筑師自身對于傳統產業園區的反思不謀而合,使得我們得以將更多的精力投入在探索實現這一共同訴求的路徑可能性上。
▼場地肌理分析
▼內院一角——屋宇和山徑
在效率要求過剩、反思精神需求的現在,我們嘗試探索與周邊封閉化管理的園區形成差異化的方向,參照傳統村落集體性勞作與日常生活的群居模式,挖掘其與周邊陸續入駐的企業的互動可能,通過“流線重構”打造如游園般的空間體驗,重塑一場“山舍”生活的集體記憶。
▼廠房室內
01.
內向穩定的建筑布局
在深入了解了業主企業的生產工藝要求、踏勘了場地和進行了反復多輪的推演之后,建筑師決定將設計的主要切入點回歸到最為基本的要素——“流線”上。在此,流線的含義不僅在于實現產業生產所需的工藝流程和貨運流線,也包括了即將在此生活工作的產業工人與管理者的生活行為流線。
▼功能分析
▼東南鳥瞰——與周邊形成差異化的產業園區
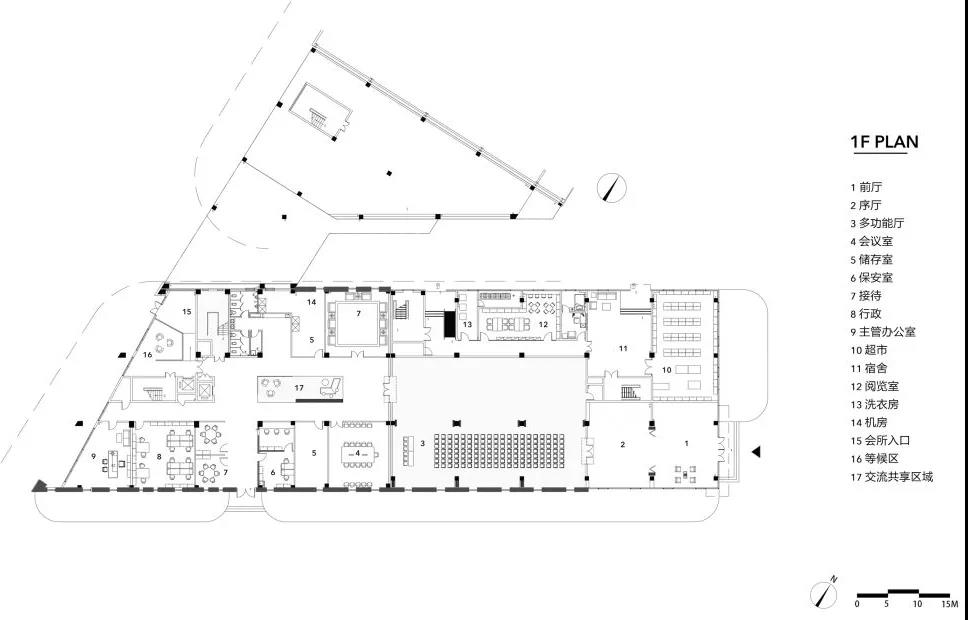
從基于生產的物流考慮,建筑師將沿場地邊四棟體量最大程度地外推貼邊布置,并與外圍環形車道連接以實現高效物流進出,在場地中央的剩余空間形成了一個回歸生活的內院。
東側貼臨道路布置對外服務車間;北側布置基本生產車間,并與后續的二期用地相鄰;西側沿泄洪渠布置無塵車間和實驗室;南側面向錢塘江的景觀界面則用于建造研發辦公和生活配套綜合樓,場地中央布置第五組體量——食堂及生活服務中心,并將其作為生活行為流線的匯聚節點。
▼夜晚的內院U玻立面
▼從研發中心架空層看向西側排洪渠
這一布局所形成的中心放射性的功能組織結構,為工人的日間生產和工余生活都提供了最為高效的路徑連接。理順園區效率這一底層邏輯后,一種關于限定及圍合的空間構圖已然呈現,以自然山水為中心,具有一定封閉性的內向空間,在人的心理上也建立起一種聚居環境的安全感、庇護感和認同感。
▼員工食堂的后勤入口
02.
本土敘事語境的傳統聚落
當西方舶來的工業文明與設計相遇,機械生產場景使得勞作陷入單調枯燥的流程循環之中,建筑師嘗試將其轉換為一種更具本土敘事語境的傳統聚落圖景,重拾人文意趣。還原到具體的圖景切換策略,建筑師則借用中國傳統繪畫的經典著作《芥子園畫譜》作為這一切換的邏輯線索,即以一種“類型化”的視野來拆解傳統山水繪畫中的元素——山、石、屋宇、水、籬、臺閣、門徑等要素,并以當代的建筑語匯與之相對應。
▼從水池望向西側員工宿舍
山——貼合場地周邊的四組建筑通過體量的連接及屋蓋的處理構成了基本的山勢,并面向東南角打開“拗口”,形成圍而不合的袋型空間。
石——以預制的混凝土幾何砌塊進行堆疊,取疊石之意而重構。
水——在場地中心生活配套建筑邊,面向開敞拗口設一淺塘,有水則靈。
屋宇——為避免食堂和生活服務中心對本身不大的山院產生壓迫,打散其形體,將之轉化為三個互相連接的小體量山舍群組,臨水而置。
籬——摒棄了傳統工業園區的實體或鐵藝圍墻,而以規格模數化的白色打點漸變彩釉玻璃構筑線性序列,限定了場地邊界的同時,仍從管理上保持著對于整個周邊區域的視覺、資源共享借用的開放度。
臺閣——在辦公研發的主樓頂層西南角設一觀潮臺,潮來時憑欄望江。
徑——我們將紅色棧道作為要素抽取出來,顏色鮮明的曲橋和棧道是建筑視覺上的核心表現元素,也是山水畫中自在的空間語言,也進一步構成了串聯以上所有圖景的核心線索。
▼內院一角——屋宇和山徑
▼彩釉玻璃構筑線性序列限定場地邊界
03.
紅色棧道作為要素的流線重構
建筑師抽取了車間的疏散樓梯、屋頂太陽能板的檢修馬道、跨越水池的小徑、辦公樓的室內樓梯,覆以統一的耐候鋼板,或將之外化可視,或將之下沉消隱,又或使之穿層飛樓,還原了中國傳統的山水繪畫的中若隱若現、似斷實連、曲折回繞的山徑,并進一步構成了串聯所有圖景要素的核心線索——不僅是可視的,也是可游和堪用的。
▼外置的耐候鋼板疏散樓梯
疏散樓梯和走道輔助流線布置在車間功能區塊外側,使得內部空間的再劃分變得更加自由。墻面******的廊道和樓梯為工人通向食堂、宿舍提供了便捷路徑,也是工人短暫工間休息的場所。屋頂上的樓梯為頂部太陽能板的檢修提供了便利,也是工余登高望遠的戶外活動空間。
▼屋頂馬道和疏散樓梯的連接
與此共生的還有豐富的線性體驗:觀岸、攀山、走崖、渡橋、游水。水中相望為觀岸,匍匐上行為攀山、建筑立面為走崖、串聯通道為渡橋,水中曲折為游水。與江南建筑情、趣、神的園林意境不謀而合。
▼棧道的路徑體驗
▼屋頂光伏板檢修馬道
04.
透明性的材料表達
面對錢塘江畔,項目周邊時常水天一色的奇景,設計上選用了白色瓦楞鋼板和超白U玻作為外墻的主材,在使之融入大場景的同時,又通過這兩種對比強烈的材料營造了園區面向外界和內部的不同質感。
▼面向園區外部的山形立面
面向外部,建筑外墻通體飾以白色瓦楞鋼板,縱向的條窗、瓦楞紋理及折面屋頂構成了“山體”的干練、簡潔的“實面”肌理。
▼內院U玻立面與外置的疏散樓梯——山徑
面向園區內部,連續的U玻構成了一種連續的半透明狀態,并在白天與夜間形成了完全不同的質感——日間的清冷與夜間的溫潤。建筑以輕盈姿態依水而立,隱隱透過立面映射出建筑內日常的工作和活動。
▼夜晚的內院U玻立面
05.
室內:建筑敘事的內部延續
建筑、景觀、室內一體化的設計模式是我們一貫的理念,也貫穿了本項目的設計始終。line+設計師在介入項目后,延續了原有的建筑空間理念,并進一步結合園區的使用模式和具體要求,展開了針對性的建筑空間改造和室內重構。
▼綜合樓功能分解圖
室內設計作為建筑敘事的延續,同時塑造融合山水意境的現代辦公空間新體驗,以“偶遇”,“初探”,“登高”,“望遠”四個階段循序展開。
▼入口
▼多功能廳
▼會議室
偶遇,耐候鋼折邊門廳突顯儀式感,呼應外立面的特質同時緩沖內外空間轉換。頂面引入半通透的金屬拉網板作為主要的元素,結合T8燈管和線性條形燈,與裸露的原始建筑結構,使得頂部空間具有豐富的可讀性和延展性。
▼辦公空間
▼室內“庭院”
再探是公共區域放置的“村院”。在辦公室區域中間設置由輕質的金屬網的半圍合空間,介入溫暖的顏色,既是共享工作空間也是提供小憩的室內“庭院”。
▼鋼板樓梯
登高。延續貫穿整個建筑的紅色棧道,室內的鋼板樓梯層層相連,盤旋而上,呼應建筑外立面棧道的趣味性。
▼員工宿舍
望遠,到達建筑的至高層,是業主的私人接待及辦公空間。入口區域吊頂和墻面用整木方實現水波紋的效果,呼應遠處錢塘江浪潮。
▼入口吊頂“水波紋”
平面設計打破原有的樓板結構,形成室內外空間相互穿插,相互貫通的灰空間,用現代的設計手法演繹半屋半院、半石半林的傳統民居布局。
▼黑盒子
▼“黑盒子”將室內空間向外延伸
最后在東南角戲劇性地外置入一個黑色盒子“閣樓”,既是對建筑外立面上紅色樓閣的一種對話與致敬,也是山水畫中的臺閣意象,縱覽江景。
06.
景觀:簡潔抽象的山水精神
景觀的設計同樣與建筑概念一脈相承,用簡潔抽象的形式來傳達山水精神。
▼景觀功能分析
庭院雖小,五臟俱全。前庭處與籃球場區提供了消防疏散的應急聚集區;院墻之后,是工人搬運貨物的堆積點;疊石處可安靜觀景亦可坐下閑聊;淺水池是廠區內的虛空間,在枯水期時也是工廠舉辦市集活動的下沉廣場。
▼岸石與花木
暗紅色銹板的曲橋采用下沉式設計,讓人更加親近水面,連同建筑屋頂上彎曲的亮紅色棧道,在場地上盤桓貫連,讓人有如山行,如水游的感受。
▼下沉式曲橋
究問山水文化,運用創新材料,我們重新定義生產村落,重構山水畫意境,賦活新的生產空間,將山水對話關系在園中解讀。對于工人而言,這里不止現代乏味的流水線工作,而是一個勞動時盡情揮灑汗水,閑暇時飽含自然召喚和有趣生活的口袋式山水景觀。
▼曲橋與棧道
▼細部
07.
結語
歷經多番周折,項目已悄然建成并投入使用,在保持產業項目基本設計邏輯和實際效率的同時,建筑師所設想的產業園區的差異化表達,最終通過了這種基于傳統繪畫圖景轉譯的方式得以呈現。
▼從無塵車間通向食堂的山徑
個體的實踐、感受和認知是闡釋空間和地方性意義的組成部分。當工人們走上屋頂,在池邊戲水,在下沉廣場里舉辦熱鬧的市集,工業園已不再是裝載冰冷機器的廠房,而是緊密結合的群體在其內部活動發揮各自功能的聚落。
▼屋頂光伏板檢修馬道
江畔游園“山舍”這一通過平面的傳統繪畫技法來映射深度可游場景的嘗試,仍在潛移默化地影響著在這里生活、工作的產業工人們,并持續地吸引著周邊的好奇行人們,而至于業主——似乎正打算將家搬至此間與工人同住。
聞之而欣然。
▼清冷——早晨的中心庭院和生活服務中心
▼水景
▼餐廳一層平面
▼綜合樓一層平面
項目名稱:浙江普利斐特生產基地一期組團
設計單位 :
建筑設計:GLA建筑設計
建筑改造&景觀設計&室內設計:gad · line+ studio
主持建筑師:朱培棟
設計團隊:
建筑:朱培棟、沈曉峰、王雨非、龔悅、陳智航、謝道清、周劍、豐建華、黃國華
景觀:李上陽、金劍波、蘇陳娟、湯睿嫻
地點:浙江海寧尖山新區
設計時間:2015-2018年
竣工時間:2019年
基地面積:20716平方米
建筑面積:26004.2平方米
.END.
注:本文轉載自gooood谷德設計網,版權歸原作者所有。

