復旦大學相輝堂修繕擴建
作者:建日筑聞 來源:建日筑聞
本項目為上海復旦大學相輝堂修繕與擴建工程。相輝堂坐落在復旦大學邯鄲校區中西部,位于歷史風貌保護區內,是一座具有重大歷史意義的建筑,見證了復旦的歷史發展,曾經接待過眾多學術權威以及包括美國總統里根在內的政要,也是復旦學子畢業照的拍攝地。然而隨著時間推移,相輝堂失去了原來的光芒,除了二樓勉強作為禮堂,底層成為了倉庫、儀器租借、小賣部等的所在。對于相輝堂的修繕是為了恢復其應有的歷史價值、使用價值和文化價值。
東、西立面圖
另一方面,相輝堂原有的容量已經無法滿足禮堂的功能要求。擴建建筑為一座751座的多功能劇場,由老相輝堂作為其前廳,共同構成復旦大學的新禮堂。擴建建筑在與老建筑協調共生的前提下,既滿足了觀演、學術交流、會議活動的功能,又保留了復旦舊有的校園格局,復刻了一種歷史記憶。
分析圖
建筑形態突破常規新建處理方式,考慮與優秀歷史建筑相貼鄰建造,采取下挖策略,控制新建建筑屋頂高度不超過歷史建筑屋脊高度。
通過綿長均質界面的鋪陳和通透圍合院落的設置,充分彰顯具有場所特色,親和開放的新時代學校文化演藝中心。
功能布局突破劇場前廳,觀眾廳,舞臺區,分區過于明確的功能擺布方式,結合空間訴求,通過對新老建筑的連接和梳理,在建筑的底層及二層將不同形式的演出集會空間、公共展示空間、休憩交流空間功能充分融合,形成高效關聯,公共開放的復合功能綜合體。
剖面圖
相輝堂位于復旦校園歷史風貌區,周邊相鄰多幢歷史建筑,新建建筑采用簡潔方整的外部形態,溫潤低調的灰色陶板立面,清水混凝土的透空界面,以有限的方式介入既有歷史環境,以當代建筑手法延續歷史空間文脈。
項目圖紙
場地平面圖
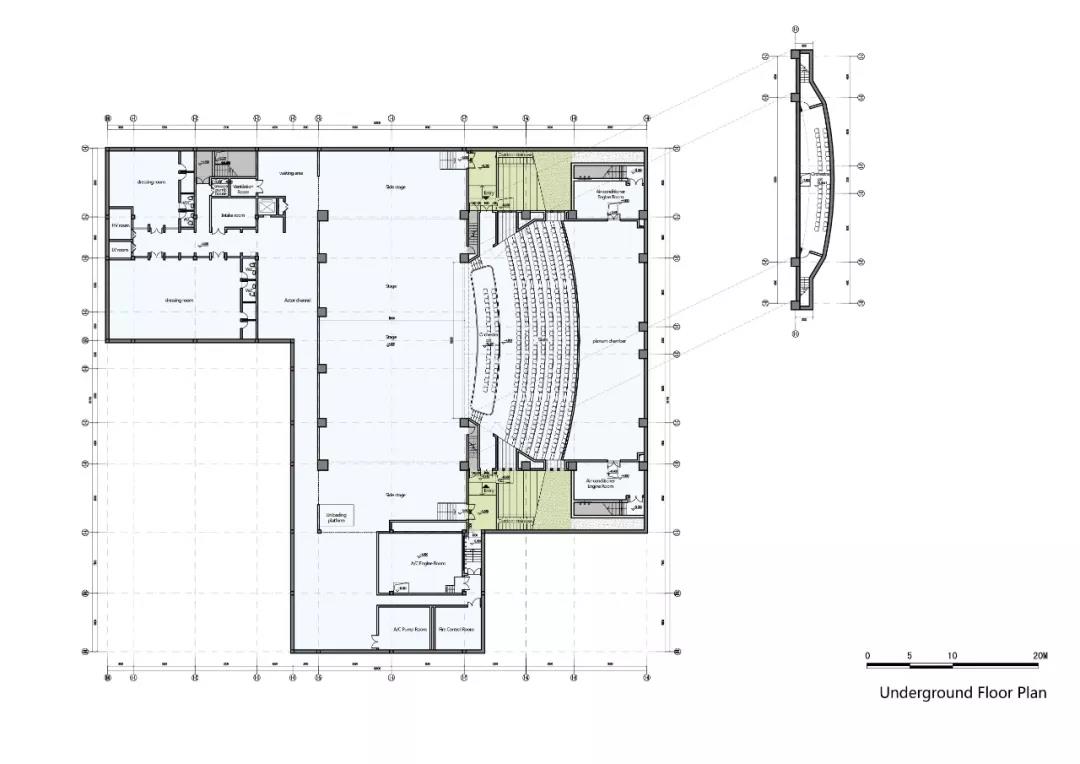
地下平面圖
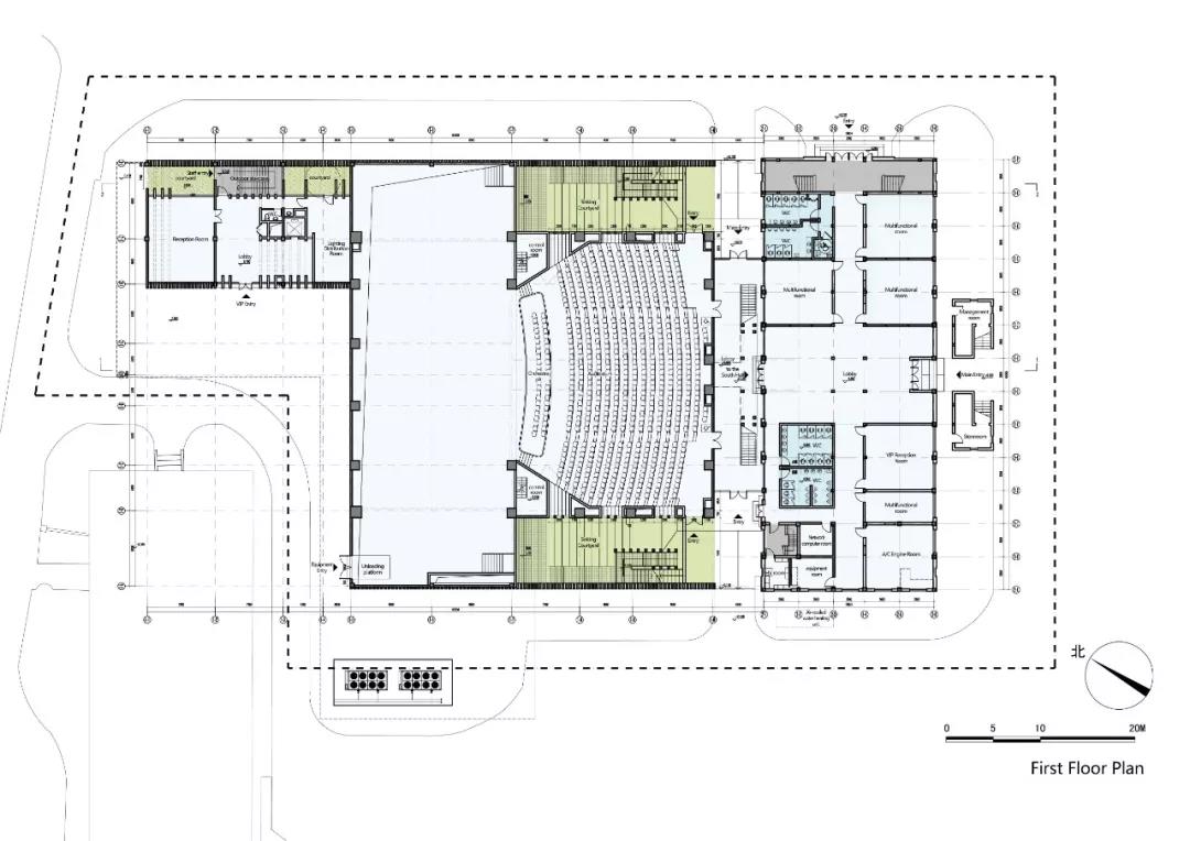
首層平面圖
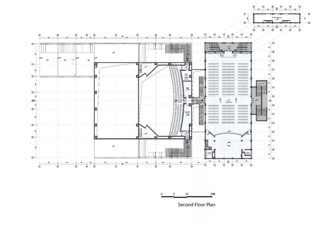
二層平面圖
北立面圖
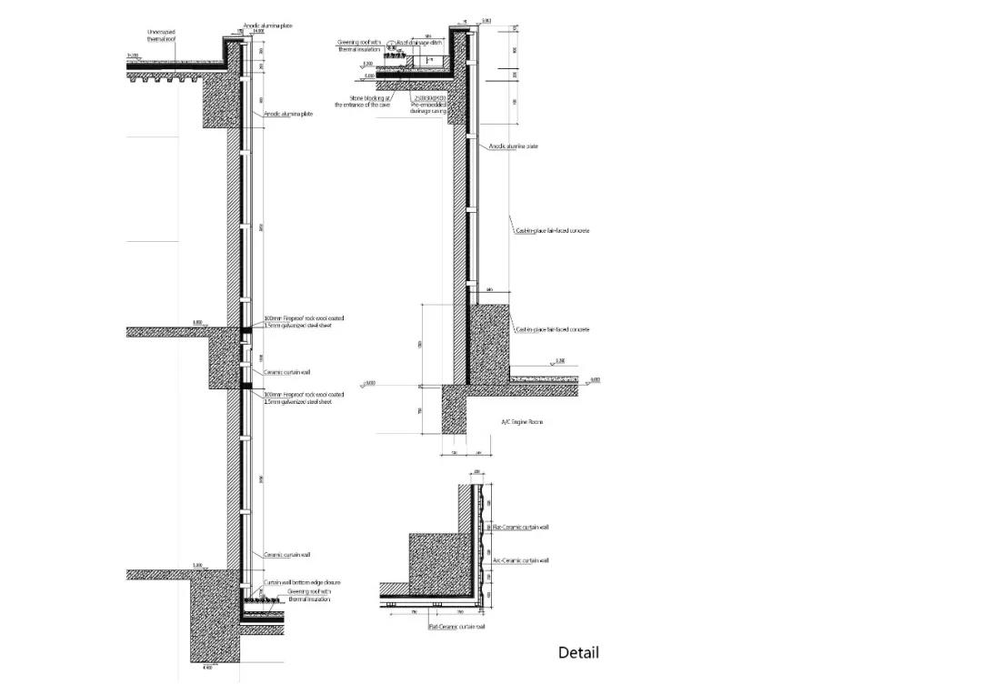
細節圖
項目信息
建筑師:同濟大學建筑設計研究院(集團)有限公司原作設計工作室
地址:邯鄲路220號,楊浦區,上海市,中國
建筑面積:5047.0 平方米
項目年份:2017
主創建筑師:章明、張姿、肖鐳、馮珊珊、費利菊
.END.
注:本文轉載自建日筑聞,版權歸原作者所有。

