唐堡書院-村民公共活動中心
作者:建日筑聞 來源:建日筑聞
項目背景
唐堡書院坐落于陳堡鎮唐莊村,地處江蘇省興化市,古稱昭陽又名楚水。這里自古人才輩出,文化積淀深厚,前有元末施耐庵,后有清代揚州八怪之首的鄭板橋,濃厚的“人文氣息”是此處最為鮮明的地域特征與氛圍。唐堡書院則以傳統地域文化為發展母體,通過建造一個村民書院讓此處悠久的文化氛圍在當代鄉鄰生活中生根萌芽。
這一獨特的文化屬性要求建筑設計扎根于傳統、服務于當代,在此氛圍中為當地孩童、村民以及游客建造了一個寓教于樂、文化交流的鄉村活動場所,為激發出暗含于鄉村的傳統文化增添了更多的空間可能性。
基地位于村口,北側毗鄰莊西河,南側面對村口停車場,東西分別為村道和本地民居。
分析圖
場地中的自然村落歷經百年,沿著星羅密布的河網水系自由發展。在這里,村落縱橫穿插,錯落有序,河流繞田而過,生生不息。在不經意間自然勾勒出了一幅“山水田園繞城郭,人居美景入畫來”的極致村落景象。
村落肌理
設計師為重新詮釋這一中國田園山水畫般詩意的訴求,實現讓建筑真正意義上的融入自然,保持村莊特有標志與肌理,將唐堡村內“村落”與“水田”兩種物質空間形態被提煉、置入到村民生活之中。
在原本組合形態單一的原始村落布局中,既形成了相互穿插,聯動互通的整體建筑布局,又尊重與保護了在歷史歲月中積淀形成的村落群體建筑的肌理特性,活態傳承了江蘇省興化地區村落肌理的樣貌。
建筑以南北向為主,東西向輔以多層次的院落穿插貫通,創造出了既私密又豐富的院落、村巷空間。
分析圖
分析圖
模糊邊界
設計師通過營造縱橫交錯的灰空間——院落、村巷、連廊,將傳統村居中的“檐下空間”極致表現,原本清晰明確的建筑邊界逐漸開放。不同單體建筑空間下的功能配置在此發生了聯系與交流,相對模糊化的空間邊界允許原本孤立的村落文化功能在此匯合。
在這里,街巷、院落不僅是流動的交通空間,也是村民聊天、游客休憩的公共場所,建筑在空間上被賦予相互延伸相互滲透的能力。設計師通過對模糊邊界的探索,為傳統而又保守的村落文化活動營造了開放的姿態。鄉鄰交流、活動、學習、休閑等社區活動在此發生。
建筑功能的分區在空間體塊上做出了明確的區分,卻沒有強加以生硬的物理邊界。這既展現了唐堡書院作為公共文化建筑的生動性與開放性,又重現了傳統江南民居檐下空間中的文化屬性,從而使建筑與人的互動收放自如,靈動豐富。
至此,山水畫成就了最詩意的建筑,建筑成就了有最煙火氣息的生活場景。
傳統建造
另一方面,在建筑的風格樣式上,唐堡書院在傳統建筑材料的語言上做出嘗試。小青瓦、花格木門、花磚、鏤空磚墻及疊澀的運用隨處都有跡可循。可設計師并不局限于此,試圖在創新的基礎上加以利用。
屋頂起翹正是如此,它被巧妙的轉化成一種符號,一種只屬于唐堡的建筑符號。如此種種細節,唐堡書院都在向來訪者營造獨特的場所感,在形與神之中重述村落的歷史人文氣息。
項目圖紙
平面圖
立面圖
剖面圖
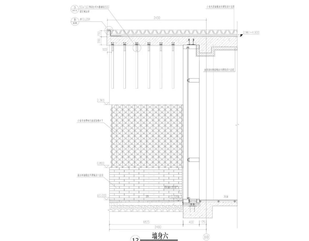
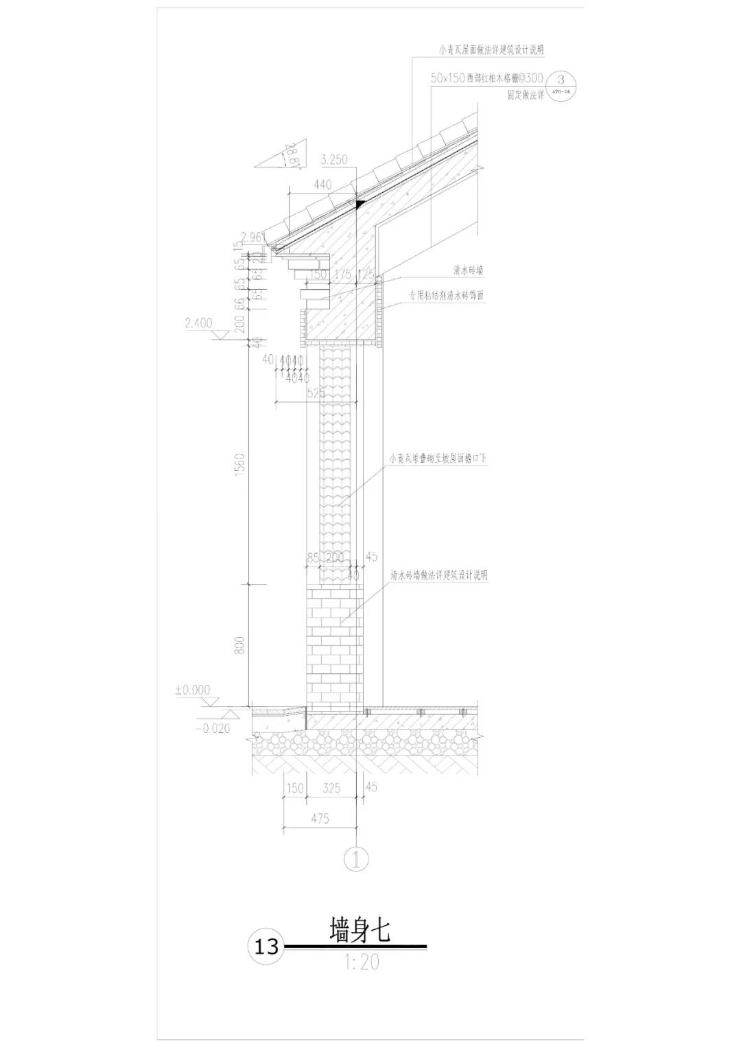
節點大樣
項目信息
建筑師:華建集團·上海設計 Free Studio
地址:陳堡鎮唐莊村,興化市,江蘇省,中國
主創建筑師:沈鉞
建筑設計:王曄、蔣加苗、邱桁
設計單位:華建集團.上海設計 Free Studio
建筑面積:1424.0 平方米
項目年份:2017
.END.
注:本文轉載自建日筑聞,版權歸原作者所有。

