挪威碼頭‘燈塔之家’ / B?rve Borchsenius Arkitekter
作者:建日筑聞 來源:建日筑聞
© B?rve Borchsenius
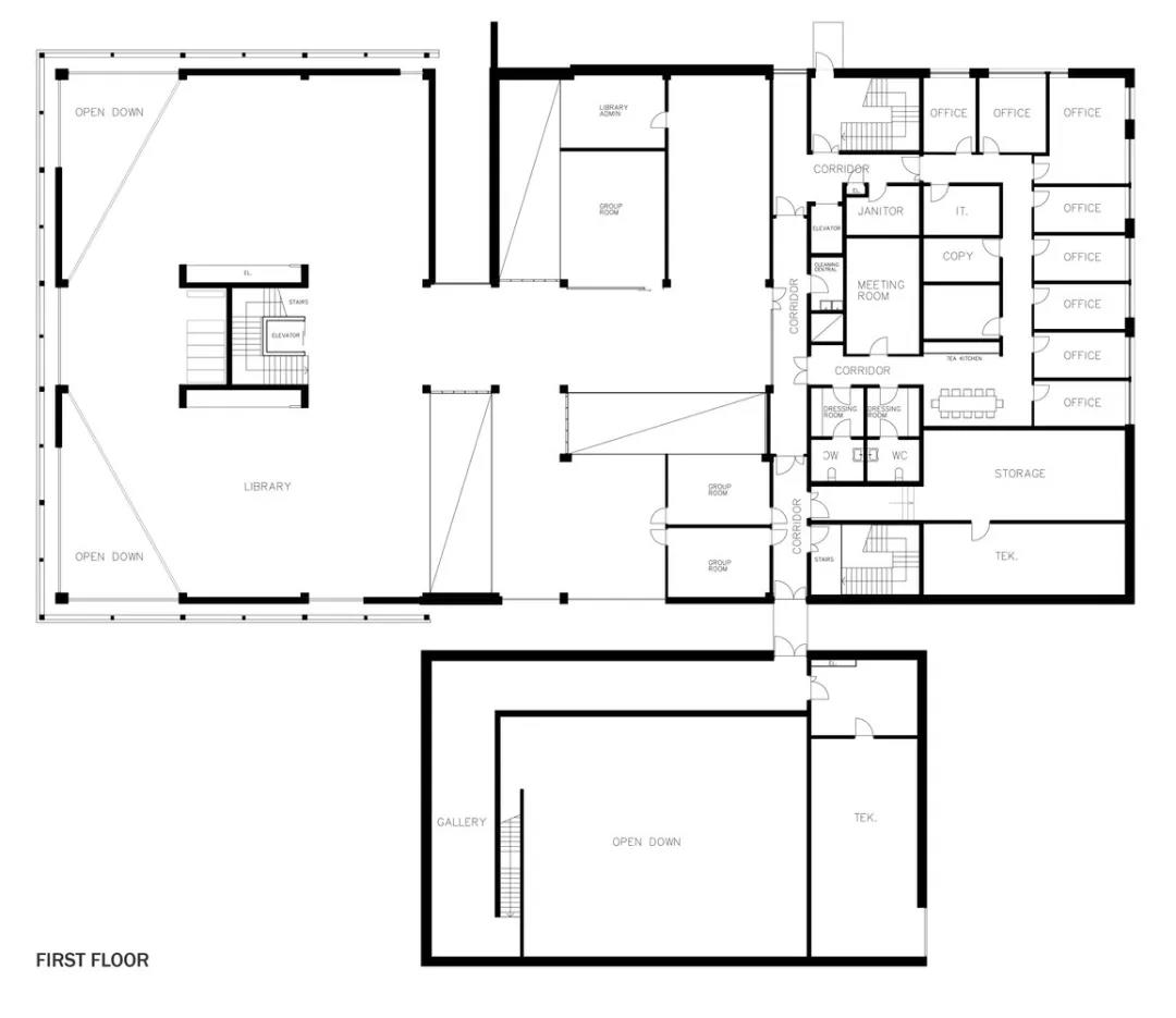
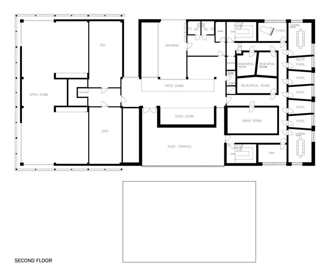
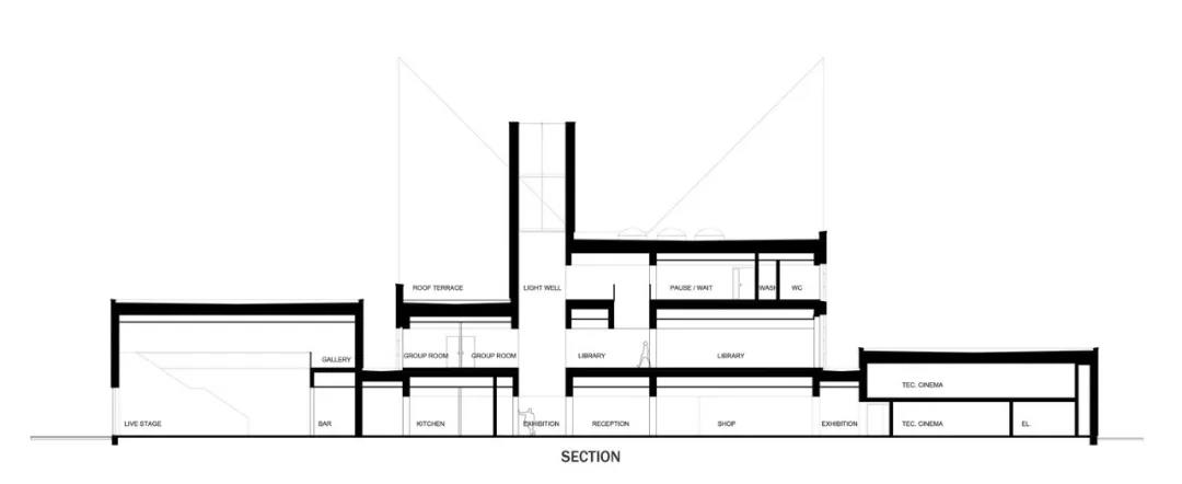
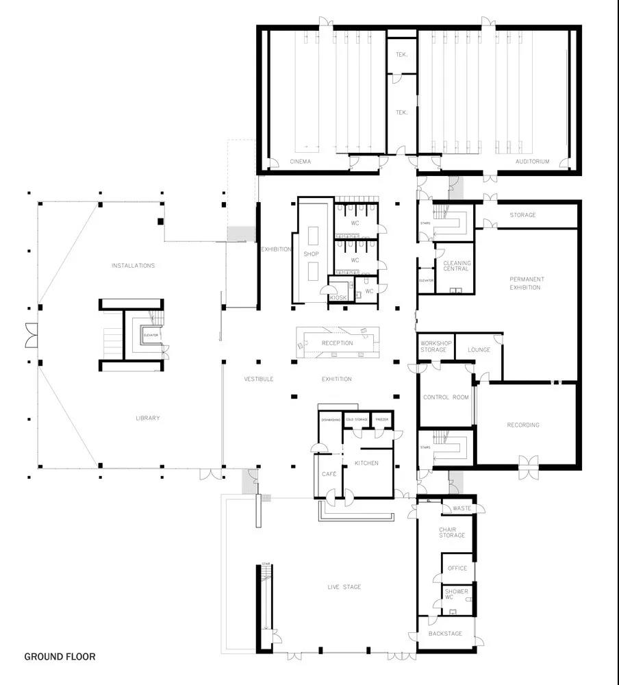
該項目在2010年贏得了一個公開的國際規劃設計比賽。圖書與藍調之家(Bok & Blueshuset)是一座三層樓的建筑,包含圖書館、電影院、現場舞臺、咖啡館、藍調博物館、錄音室和音樂教室。
© B?rve Borchsenius
© B?rve Borchsenius
© Espen Gees
© Espen Gees
Notodden 藍調節和Europas Bluessenter也在這里設有辦事處。建筑的所有功能通過一個開放的前廳和接待處連接。該建筑大量運用了歷史工業建筑的元素,這也是Notodden碼頭地區今天的特色。
軸測圖
© B?rve Borchsenius
© Ivan Brodey
© Jiri Havran
© Espen Gees
不同的功能被組織在各自的體量中,因此從建筑外部就可以知道其功能分布。接待處和前廳上方的三個大燈塔是這棟房子的標志。
© Espen Gees
© Espen Gees
© Ivan Brodey
© Ivan Brodey
項目圖紙
首層平面圖
二層平面圖
三層平面圖
立面圖
剖面圖
項目信息
建筑師:B?rve Borchsenius Arkitekter and Askin/Lantto Arkitekter AS
地址:Storgata 1, 3674 Notodden, 挪威
建筑面積:5225.0 m2
項目年份:2013
.END.
注:本文轉載自建日筑聞,版權歸原作者所有。

