清華大學法學院圖書館
作者:建日筑聞 來源:建日筑聞
2014年,Kokaistudios贏得了北京清華大學法學院圖書館建筑及室內設計的國際競賽。該建筑主要包括研究、教學及辦公三大功能,既致敬了傳統凹版印刷塊,又令人聯想到中國首都的標志—胡同和庭院。并由一系列的挑空空間相連,這座建筑為中國一流學府的校園增添了一道亮眼的風景。
東立面
西立面
Kokaistudios設計的2萬平方米新建筑是校園既有規劃的建筑群之一,其重要性為呼應群組下沉區的主題景觀,也兼容開放及封閉兩種形態的人行道,“二元性”是新圖書館的核心理念。
總平面建筑布局分析圖
功能分區及內部流線分析圖
建筑功能垂直劃分,低區主要作為開放的公共空間,向上則偏向封閉的私密空間。為與周邊的露臺及分區景觀相協調,圖書館的兩個入口被分置于不同的樓層。西側的入口設在地面首層,并通向一個兩層通高的中庭,空間開敞且通風極好,并與一個約450坐席的活動空間相連,主要用作模擬法庭;東側的入口則設在地下,通往學生中心、自助餐廳及多媒體教室。
軸測分解流線分析圖
入口中庭
入口中庭
為創造更私密和安靜的環境,設計將三層以上的空間整體留給圖書館。中庭三層挑空,頂部天窗提供了充足的自然采光,圍繞這一中心,整體布局呈旋轉對稱狀展開:書架區在四周排列,外沿則是閱讀和學習區。由一系列的寬大坡道和階梯式座位區連接,配以淺色的木材,課桌被安置在落地窗邊,提供自然光的同時也為使用者提供了舒緩、平靜的閱讀體驗。設計不僅創造了一個可高效利用的空間,更可以讓師生和訪客在其中自由無拘、連續穿行。
入口中庭
模擬法庭
再往上走,最上面的三層是學術人員的辦公室和研討室。與下方樓層的開放性形成鮮明對比的是,尺度收窄的入口區平和安靜,向內的區域幾乎像修道院回廊一般私密。這里同樣延續了空間的虛實相生和挑空的主題,設計受中國古典園林的藝術啟發,樓層的平面功能圍繞著中央庭院來布置。空間的中心點是天窗,設計通過光線含蓄地連接所有元素。
3樓中庭
3樓中庭
建筑內部的挑空的空間主題在室外依然有延續。更為特別的是,閱覽和研究區旁連續的一扇扇窗呈錐形對角狀,為建筑中部三層增添了透明的質感,效果十分靈動。而外立面的石材覆層呈垂直條狀,仿佛是中國經典的竹卷書簡。設計與空間的功能相契合,建筑整體會令人聯想到傳統的雕版印刷和印章,這些與書籍、秩序和法律緊密相連的形象。
閱覽室
閱覽室
建筑周邊的空間虛實相映,讓人聯想到北京迷宮般的胡同,特別是那些掩藏在墻和門之后的傳統庭院。鏤空的空間也呼應著下沉天井這一主題,而天井正是周邊建筑的特色。
大坡道式閱覽室分析圖
閱覽室剖******圖
大坡道閱覽室
大坡道閱覽室
所有元素相結合為空間提供了學術建筑必需的功能,即學習、研究、交流、沉思。清華大學法學院圖書館是中國最負盛名的法律精英的研習空間之一,這座具有里程碑式的建筑不僅為學生、學者提供服務,更激勵著他們在法律學術之路上砥礪前行。
2樓中庭
樓屋頂庭院
項目圖紙
總平面圖
-1 層平面圖
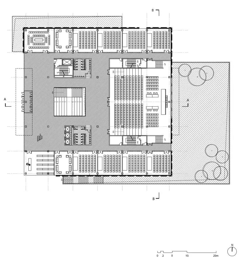
首層平面圖
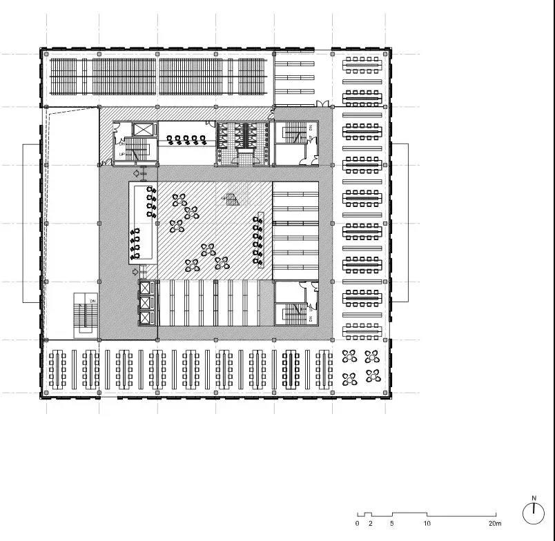
二層平面圖
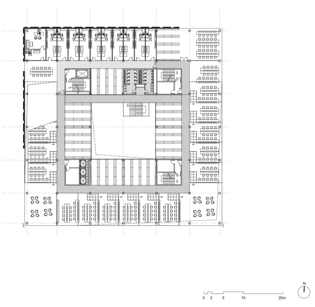
三層平面圖
四層平面圖
五層平面圖
屋頂平面圖
立面圖
剖面圖
總剖******圖
閱覽室剖******圖
模型圖
立面構成原則分析圖
項目信息
建筑師:KOKAISTUDIOS
地址:清華大學,北京,中國
主創設計師:Filippo Gabbiani, Andrea Destefanis
設計團隊:李偉,秦占濤,Andrea Antonucci,Annamaria Austerwei
建筑面積:20000.0 平方米
項目年份:2019
.END.
注:本文轉載自建日筑聞,版權歸原作者所有。

