URBANUS 公布‘深圳粵海街道文體中心’,城市開放空間不僅是地面廣場
作者:建日筑聞 來源:建日筑聞
效果圖
在經歷了高速而粗放式的“城市化”發展之后,深圳正進入到精細更新式的“都市化”發展時代。現有的資源集中、類型單一的孤島式文化娛樂設施已難以滿足當代深圳人對城市文化生活的需求,而由若干嵌入式的“文化生活錨點”所組成的網絡,正成為新的城市文化建設目標。新一批的公共文化建筑趨向于更加融入城市肌理和日常生活。相應而生的,應是一種在社會角色和建筑類型上都不同于以往的新的文化建筑的類型。
效果圖
傳統的文體中心中,各類功能空間往往相對獨立封閉以避免使用上相互干擾,這就使得整座建筑成為純功能性場所而非積極的社會交往空間;而圍繞在建筑周邊看似零散的城市開放空間因提供了不同人群之間互動的多種可能性,反而成為這些文化場所真正活力的來源。
街景
在粵海文體中心的設計過程中,在保證各類場館功能獨立運營的基礎上,建筑師盡可能多地提供城市開放空間,以促進各館使用者之間的互動。建筑本身因占地面積受限而不可避免地走向立體化。因此,都市實踐嘗試突破城市開放空間僅限于地面廣場的概念,將其抬升至空中并與建筑體量在垂直方向上進行疊加,由此形成若干相互連通的空中公共活動平臺,在建筑的不同高度上都能提供良好的與城市互動的體驗。在此基礎上進一步打破水平各層之間的空間界限,置入靈活使用且更具公共性的新功能,使平臺層成為激發都市活力的空中城市客廳。一個立體化的文體建筑類型由此產生。
設計功能分析圖
分解軸測圖
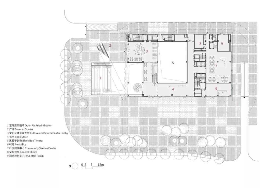
在處理建筑與場地的關系時,都市實踐在用地局促的情況下,選擇將一至四層的建筑體量在面向十字路口的街角處退讓,形成一個上有遮蔽的小廣場,周邊學校及商業的來往人流都可以在此匯聚,營造出一個積極的街區公共空間。咖啡廳、劇院入口及社區公共性最強的服務類功能被設置在可達性最強的地面層,并向負一層及二層延伸。向北側和西側打開的首層建筑界面進一步促進了與城市廣場的互動。
城市客廳
主要功能空間的分布綜合考慮了空間使用效率、結構合理性及對環境的影響等各方面因素。圖書館被設置在最靠近地面的體量中,給予其最佳可達性,同時其規律的柱網作為上方的大跨度空間桁架的支撐,保證了結構上的合理性。
社區生活廣場
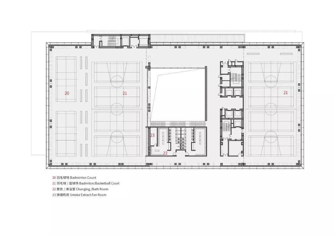
游泳館置于建筑體中部,其下方半開放休息區成為空中城市客廳。空中泳池不但擁有極佳的城市視野,其自身突出的體量也成為城市景觀的一部分。最具活力的體育場館被放置在建筑的最高處,以最大限度減少對周圍環境的噪聲干擾,其下方的空中體育花園可作為居民熱身和戶外鍛煉的場地。
剖面圖
社區生活廣場
3個功能體量以及位于不同高度上的城市公共空間,并非同質化地均勻分布,而是擁有各自不同的功能屬性和場所氛圍。“社區生活廣場”最為公共開放,是前往社區服務、圖書館、運動場館的各類人群匯集的場所;“城市空中客廳”是文化類功能和體育類功能的轉換層,室外網球場與24小時圖書借閱處都位于此處;“空中體育花園”則提供室外健身場所,視野最為開闊,環境最為安靜放松。3個城市平臺之間由公共大扶梯串聯,共同構成了一個立體的24小時開放的街區公園。
空中花園
項目圖紙
區位圖
一層平面圖
三層平面圖
七層平面圖
十層平面圖
剖面圖
實體模型
結構模型
項目信息
建筑師:URBANUS都市實踐
地址:南山區,深圳市
項目年份:2018-
用地面積:5,760 ㎡;建筑面積:38,911 ㎡
主持建筑師:孟巖
.END.
注:本文轉載自建日筑聞,版權歸原作者所有。

