九寨溝縣漳扎鎮小學
作者:建日筑聞 來源:建日筑聞
© 存在建筑
© 存在建筑
原漳扎鎮小學在地震中損壞,災后重建規模為12班學校。項目設計需要在工期短、造價緊張的條件下,滿足當地教育的需求,并回應特殊的人文與氣候地域環境。
© 存在建筑
© 存在建筑
場地適應性
場地位于山地河谷,設計利用現有的緩坡地形,分別設置校園入口、教學區、運動場,三個不同標高的臺地串聯。我們借鑒當地藏族村寨的布局特點,將建筑拆分為多個坡屋頂體量的組合,山墻向陽,前低后高,層疊起伏的青瓦屋面與大山輪廓相呼應。建筑平面圍合出多個半開放的三合院空間,將山景納入其中,建筑與環境融為一體。
© 存在建筑
© 存在建筑
© 存在建筑
模塊化空間
教學樓平面以藏族“吉祥結”圖案為原型,建立文化圖示上的心理認同:四個方形教學模塊,圍繞中央大廳,形成向心聚合的平面。
© 存在建筑
© 存在建筑
© 存在建筑
每個模塊尺寸為18米見方,內部包含三個標準教學單元,和一個由樓梯間、衛生間組成的服務核。教學單元可以在標準教室、專業教室、辦公室之間靈活轉化,以適應鄉村小學的彈性變化。
© 存在建筑
© 存在建筑
中央的校園大廳是人流匯聚的核心。大廳45度對角方向分別與四個教學模塊連接,南北和東西入口則分別通往四個庭院,便于室內外活動的互動。校園大廳既是門廳,又充當多功能廳,可以舉辦演出、講座、展覽等公共活動。
© 存在建筑
食堂圖書館作為一個單獨的模塊,采用了與教學樓雙坡屋面不同的四坡十字形屋頂,內部兩層空間上下連通,增強功能的開放與互動。
© 楊揚
© 存在建筑
氣候適應性
針對阿壩溫差大、日照強烈的高原特點,北立面設小窗,南立面設大窗。加氣混凝土砌塊作為建筑的保溫兼圍護材料,可節省造價。通過熱工計算,砌塊外墻厚度為450毫米,形成了厚墻深窗的效果。
© 存在建筑
© 存在建筑
© 存在建筑
© 存在建筑
中央校園大廳在冬季通過南側玻璃墻和頂部天窗將陽光熱量引入,提高室內溫度,充當冬季花園和室內操場的功能。教學模塊利用走道天窗和教室高側窗設計,增加空間的流動感,并有效改善室內采光均勻度。
© 存在建筑
© 存在建筑
地域建筑特征
阿壩九寨民居融合了藏族碉樓和川西民居的特點,下部夯土壘石,上部木構架露明,建造體系清晰。設計以此為原型,主體為鋼筋混凝土框架,下部磚石填充,上部設置高側玻璃窗,形成“下重上輕”的材料關系。
© 存在建筑
© 存在建筑
校園大廳和食堂的外墻面,嘗試片石與混凝土塊混合砌筑的方式,通過設置雙向拉結鋼筋,加強構造連接。建筑外觀的灰色片石、白墻深窗、木板墻身、小青瓦屋面,在材料和構造層面延續了當地的建造傳統,增強孩子們對家鄉的記憶和情感。
© 存在建筑
© 存在建筑
項目圖紙
總平面圖
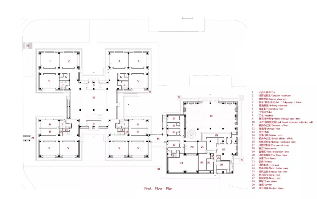
首層平面圖
二層平面圖
立面圖
立面圖
項目信息
建筑師:中國建筑西南設計研究院
地址:漳扎鎮,九寨溝縣,阿壩州,四川省,中國
主創建筑師:劉藝
設計團隊:楊揚,黃熹
建筑面積:5000.0 平方米
項目年份:2019
攝影師:存在建筑、楊揚
.END.
注:本文轉載自建日筑聞,版權歸原作者所有。

