藉民生推動城市活力 - 昆山市政務服務中心,江蘇
作者:gooood谷德設計網 來源:gooood谷德設計網
昆山市政務服務中心由四棟塔樓和連接塔樓的裙房圍合而成,建筑面積10.2萬平方米。匯集了二十多家市級委辦局,為全市居民、企業提供包括民生、社保、稅務、公安、出入境、公共資源交易、投資建設、市場準入、社會綜合管理等一站式服務。
▼建筑外觀
自項目2009年立項、2011年建筑方案后期階段開始介入設計以來,歷時多年,期間經歷了各種國家政務政策、城市綜合服務管理定位、使用功能置換、新老建筑規范交替等等的調整變化。
▼內庭院地下采光景觀樓梯間出口
設計者回望的視線和思考已從之初的設計本體抽離開,更為關注的是于當下快速變化的時代背景之下,城市公共職能的管理者和公民空間以及被服務對象之間的決策、激發、引導、契合關系,活動對象由此獲得的身體與精神層面的愉悅感和被尊重感,藉民生活動推動城市的活力。
▼社保辦理A門廳
▼社保辦理B門廳
▼一站式政務服務窗口
原點
設計離不開時代大背景特征,各種不確定性也是時代變化的映射,比如隨著網絡和社交媒體的變化帶來的工作生活方式變化以及政府機構改革的變革,早期規劃的分類、數量、工作流程都會被打亂重置。包括專業上的建筑防火規范、防排煙規范的更新帶來的連鎖反應都不是設計之初可以預料到的。
▼服務區立面局部
▼立面細部
光線
光線經常被人片面理解為光影和明暗,其實光定義的是形狀、顏色、距離、大小等信息,光線體現秩序,光線帶來的情緒和身體感知,否則John.Lobell那本著名的《Between Silence and Light》,就變成了“Shade and Light”。光線本身并沒有太抽象的意義,需要通過介質疏理、約束,讓其成為空間必要的非物質性元素進入。
▼報告廳外側走廊
▼報告廳
▼資源交易大廳等候區
▼市民文化展廊
▼室外直達樓梯
項目本身作為大型公共服務職能空間,“陽光”、“開放”已經是成為城市公共性空間必要的精神氣質和某種隱喻。在B2層至2層的通高空間兩側增設格柵處理中,西側是考慮遮陽和弱化鄰樓體量帶來壓迫感,東側是將觀察視線壓低至建筑圍合的竹林蓮池水景庭院景觀,讓昆山古籍《玉山雅集》中所描述的“舍前有修竹,舍后有芙蕖。掇蓮置豆,清風座隅。倦來聊掩窗,步出臨前除。”的畫面完整呈現于預設的框景中。
▼公共資源交易中心大廳
同時可以減少地下空間和室外轉換時的光比過大產生的“暗適應”生理現象。而格柵形式的本身也是具有東方靜謐、秩序氣質的地域文化性表達。包活結合室內景觀的等候區域選用了具有東方庭院氣質的青楓樹,在陽光與室外綠地的交融中消除了建筑內外的差異,營造空間中人與自然的親密和諧氛圍。
▼政務辦理等候區
▼營造空間中人與自然的親密和諧氛圍
材料
土建剛開始施工時我們到現場查看,由于項目建筑質量有“魯班獎”的評審標準要求,現場使用的模板和混凝土澆筑質量都比較高,尤其是在新模板最開始使用時的裙房部分,拆模后的澆筑質量稍加修復基本可以達到清水混凝土的效果。所以我們一邊調整了原有設計方案,一邊通知現場做了保護。
▼資源交易大廳外側
▼資源交易大廳外側
另外一個因素是項目有美國綠色建筑評估體系LEED-NC金級認證標準,對再利用材料和節能環保有較高的要求。同時從整體方案的地域文化性控制來講中性灰色調和水墨江南的氣質也是吻合的。包括使用的拋光混凝土地坪也都沒有使用環氧基,而是采用水泥基。其中當然也有政府對造價控制的嚴格經濟性要求。
▼電梯廳局部
▼水泥基磨石地坪局部
形式
應該說這是個幾年前的“舊劇本”拍的新戲,方案階段的構思是基于昆山當地的昆石、湖石多孔變化的特征和“窗口”的功能性之間某種暗合的意向關聯展開的。
▼休息討論區
▼電梯廳休息洽談區
▼招標區域
B2層發光的“玉山”是希望點一下項目所在的地名為玉山鎮這個題。一層餐廳局部半圍合空間是因為防排煙的變化后增加了一臺排煙風機,局部吊頂標高下調了1.2米的應變,形式是湖石的類似荷蘭風格派的幾何抽象表達。
▼餐廳
▼“玉山”局部
填單區的奶酪墻實際上是視覺去結構化的最小化消隱結果,使用單位要求將N字形的鋼結構用封閉墻體形式包裹,設計師則希望用盡可能小的封閉面的透漏關系回應策略。思考應該都是基于不同時間節點的意識反映,如果這個“劇本”是今天寫,在設計形式上思考語言應該會有所不同。
▼構件消隱
愿景
如何讓城市公民空間與社會、自然發生良性互動,改善人與人之間關系,使更多市民從空間的感知中獲得身體與情緒的被尊重,體用合一,既無諂媚亦不孤傲,設計能改變的也許不多,哪怕能有一小點也好。
▼活動中心前廳
▼地下采光樓梯間
▼市民聽證會議廳局部
項目圖紙
▼場地平面圖
▼鳥瞰
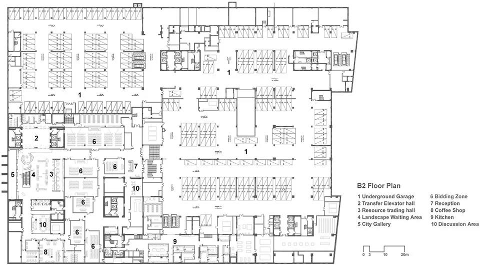
▼B2層A-D棟平面圖
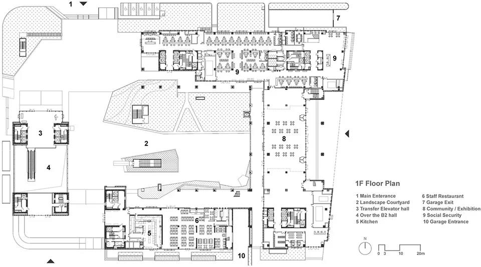
▼一層A-D棟平面圖
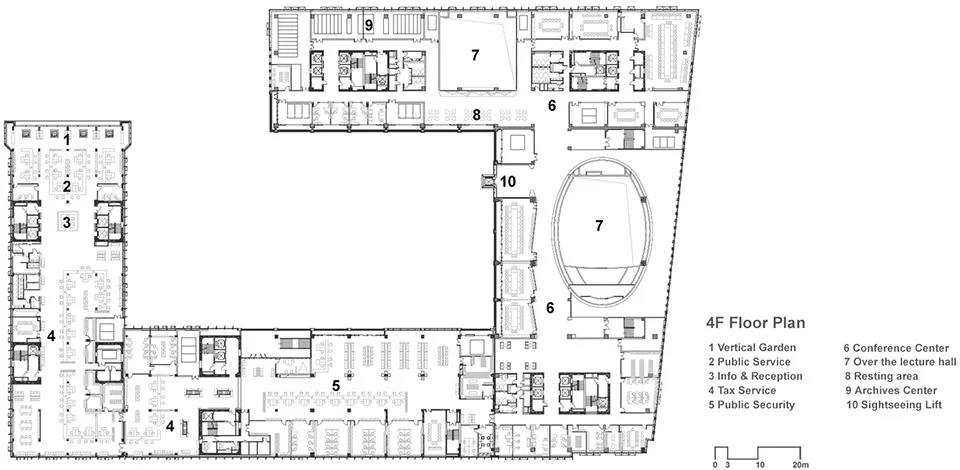
▼四層A-D棟平面圖
項目名稱:昆山市政務服務中心
項目地點:昆山市前進西路
建筑面積:102000平方米
設計主持:宋毅
設計人員:王南鋼、班亞嬌、靳力、莊子沖、李蕓、葛麗麗、凌晨、張歡、董國偉、江波
設計時間:2012.8 – 2014.10
竣工時間:2018.11
.END.
注:本文轉載自gooood谷德設計網,版權歸原作者所有。

