運河書院 – 杭州杭行路小學,浙江
作者:gooood谷德設計網 來源:gooood谷德設計網
杭州杭行路小學,位于杭州西北部良渚組團,毗鄰環境優美的京杭大運河沿河景觀帶,現狀用地東面為運河支流沿河景觀帶,其余多為農田、空置場地及少量農居點,周邊呈現出自然生態的景觀空間。
杭州是世界物質文化遺產京杭大運河的起始城市,建筑師意圖將校園景觀融入到運河生態景觀長廊的大環境中,為孩子們提供一處自然、具有活力的成長空間的同時,能夠完善其對這座城市的山水、歷史與人文的認知。
▼項目鳥瞰
為緩解場地西側城市主干道帶來的交通噪聲影響,將運動場地設置于西側作為過渡,開闊的運動場地也提供了良好的景觀面。北側以停車場和廣場組成校前集散區,開放的前場空間,容納家庭接送交通,緩解了城市交通道路擁堵的問題。將行政辦公設置北側緩解交通道路噪聲,教學區域分布在南側東側,享受安靜優美的學習環境。
▼整體布局
▼北側以停車場和廣場組成校前集散區
▼運動場地設置于西側作為過渡,開闊的運動場地提供了良好的景觀面
學校主體建筑群主要由教學區、體藝辦公區和后勤區組成,環形風雨連廊連接各個功能區,使得建筑成為一個有機的整體。學校以“園”為基本構成單元組織校園空間:教學綜合區以一條南北向中軸串聯整個區域,回型風雨廊將各個院子串聯成為一個整體;對中國傳統建筑園林空間中“半房半院”的組織手法加以傳承和演繹,在場地正交網格體系中選取U型建筑體量作為基本的模塊單元,加以重復、組合滿足多重功能需求,U型建筑單體圍合成多個院落空間,并相互滲透、疊院成園,營造出園院相嵌、圍而不隔的園林化校園環境。
▼U型建筑單體圍合成多個院落空間,并相互滲透、疊院成園,營造出園院相嵌、圍而不隔的園林化校園環境
庭院在傳統書院中起到關鍵作用,幽靜的庭院將外界的喧囂隔絕在外,學生得以融化在濃濃的書卷氣中。設計借鑒傳統民居的景觀序列,以中央景觀軸組織院落空間:院落空間分為外向開放院落和內向封閉院落,外向院落提供與教學區外自然環境的視線交流,流露出向自然延展的熱情與態度,更是對自然景觀一種尊重的表達;內向院落成為周邊院落的視域中心,兩種不同的院落通過相應的景觀設計手法,呈現出不同的造園意境。
▼院落空間分為外向開放院落和內向封閉院落
各個組團院落在空間上被連廊這一灰空間分割,但視域的滲透和氣流的流動卻沒有被阻斷,使得院落的空間層次感加深。各功能單元在一層圍而不合的空間結構,提供了院落間路徑和視線滲透的可能,使行人獲得步移景移的使用體驗,同時增加了學生活動更加豐富而多樣化的可能性。
最終,校園空間中的體驗由原來在建筑之間的穿行體驗變化為在各個庭院中的穿行體驗,將原來在大路兩旁的休息活動體驗變化為在庭院內樹蔭下的體驗,展現了“習禮大樹下,授課杏林旁”的自然書院空間場景,使學校成為大運河文化路徑上的一所現代書院。
▼校園空間中的體驗由原來在建筑之間的穿行體驗變化為在各個庭院中的穿行體驗
▼框景
▼各個組團院落在空間上被連廊這一灰空間分割,但視域的滲透和氣流的流動卻沒有被阻斷,使得院落的空間層次感加深
建筑形式采用傳統中式建筑意向,結合現代的處理手法,與杭州整體的運河景觀相融合。屋面形式呼應傳統山水,采用概括提煉手法,用曲折的屋面模擬連綿起伏的自然山脈,力求體現自然山巒的形態和神韻;白色涂料墻面與灰色瓦屋面,回應了傳統建筑的粉墻黛瓦,搭配局部的仿木材質與竹子等裝飾構建,回應傳統建筑中的木構特征。整座建筑從空間到形式,既蘊含了傳統建筑的神韻,又兼備了現代建筑的精神。
▼屋面形式呼應傳統山水,采用概括提煉手法,用曲折的屋面模擬連綿起伏的自然山脈,力求體現自然山巒的形態和神韻
▼白色涂料墻面與灰色瓦屋面搭配局部的仿木材質與竹子等裝飾構建,回應傳統建筑中的木構特征
魯迅先生在三味書屋里,不僅描寫了具有濃厚人文氣息的書院氛圍,對庭院活動的描寫更是生動:三味書屋后面也有一個園,雖然小,但在那里也可以爬上花壇去折蠟梅花,在地上或桂花樹上尋蟬蛻。
最好的工作是捉了蒼蠅喂螞蟻,靜悄悄地沒有聲音……兒童最大的心理特征就是好奇,自然的形態,自然的情調,自然的聲音,必然萌發起他們的興趣,勾起無窮的聯想。這正是運河書院想要帶給孩子們的體驗,相信它會在喧鬧的城市中延續并熏陶一代代的學子。
▼庭院夜景
▼校園夜景
項目圖紙
▼總平面圖
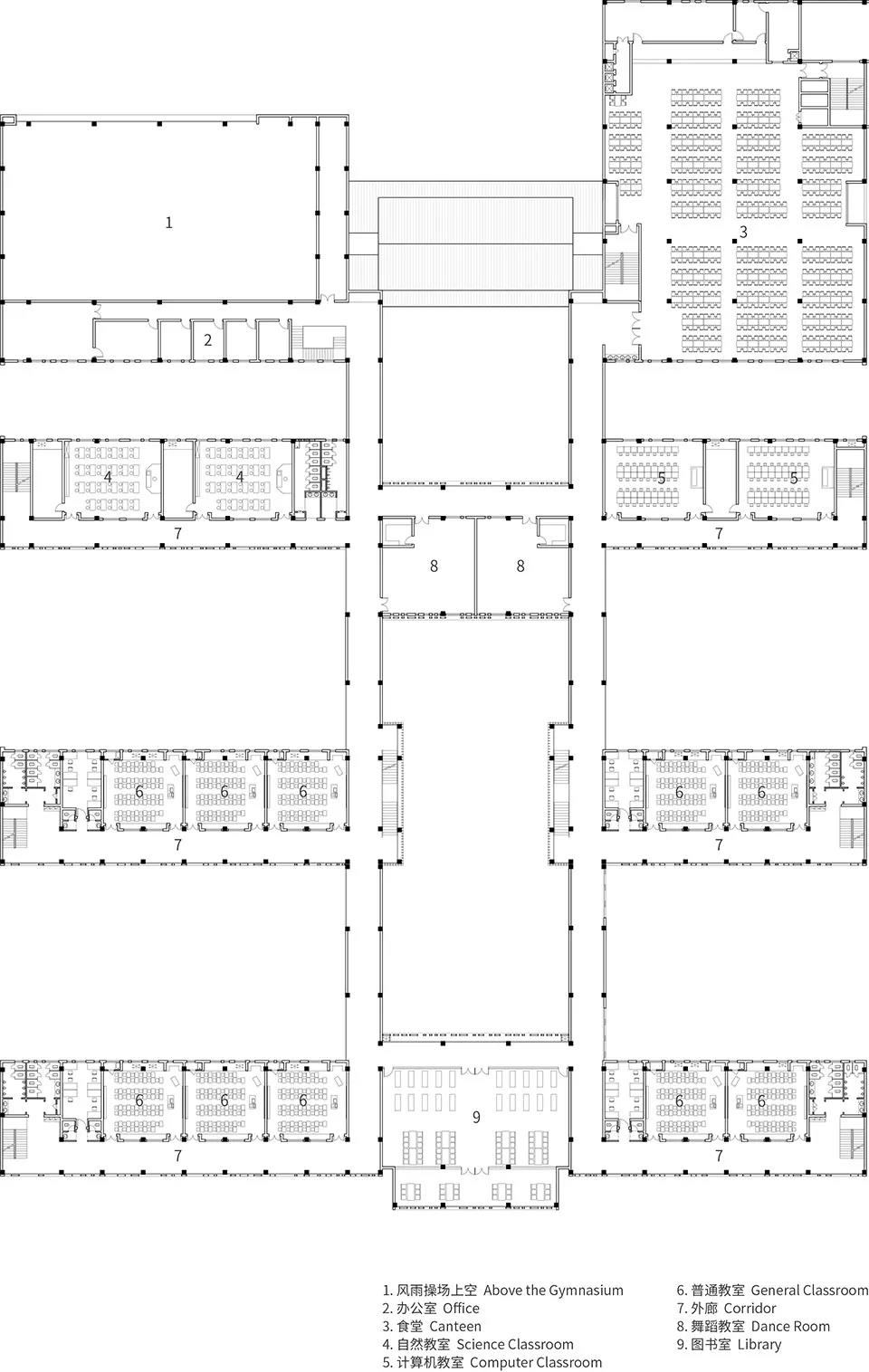
▼一層平面圖
▼二層平面圖
▼三層平面圖
▼立面圖
▼剖面圖
項目名稱:杭州杭行路小學
設計方:GLA建筑設計
項目設計 & 完成年份:2018
主創及設計團隊:GLA建筑設計
項目地址:浙江杭州
建筑面積:14153平方米
.END.
注:本文轉載自gooood谷德設計網,版權歸原作者所有。

