綠色的能源園區 - 南方電網生產科研綜合基地,廣州
作者:gooood谷德設計網 來源:gooood谷德設計網
電力運營商南方電網生產科研綜合基地坐落在一片樹木繁茂的山丘之間。園區由gmp·馮·格康,瑪格及合伙人建筑師事務所設計,實現了建筑和自然的交融。建筑群由單體建筑與錯落的中庭構成,散布其間的小型綠化廣場、光庭和棧橋連接了各個實體空間,園區主樓和會議中心大樓獲得了獲得了LEED可持續性設計認證。
▼園區西南側視角
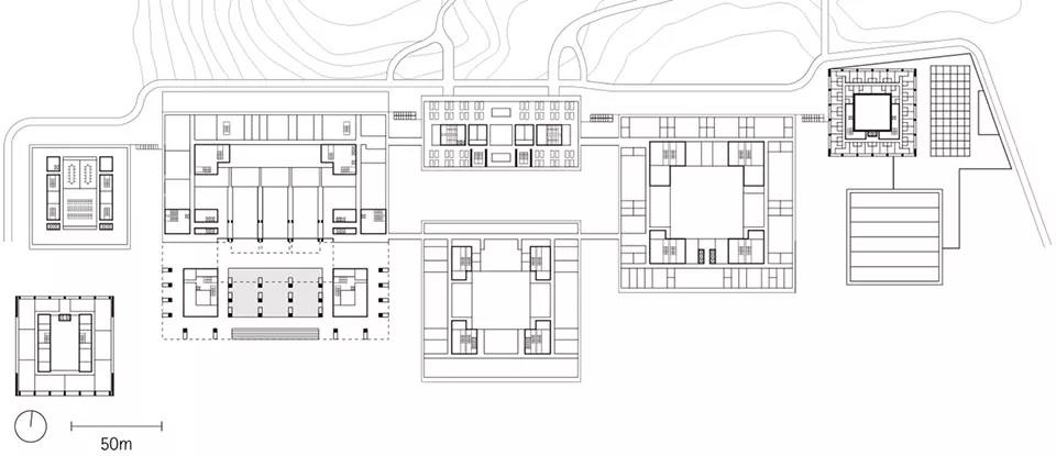
主樓和會議中心大樓獲得了LEED-NC金級認證,同時整個項目還獲得了廣州2018年優秀工程設計一等獎。基地位于黃埔區廣州科學城內,八座建筑散布在尖塔山腳下狹長的地塊之上,每座建筑均由正方形基本形體發展而來。
建筑群由一個堅實的基座、通透的連接部分和一座仿佛懸浮其上的體塊組成。淺色橫向花崗巖立柱刻畫了建筑立面的整體形象,形成了建筑群造型語言的主題,因其具有一定的進深還起到了為室內空間遮陽的作用。煤黑色豎向框架與淺色花崗巖產生對比,幕墻框架內還集成安裝了遮陽窗簾,構成了一個散熱建筑外表皮。建筑室內空間的設計也選擇了相似的材料元素,園區、單體建筑不同功能區域均保持了一致的設計風格。
▼主樓前廣場
▼設有中庭的主樓
▼主樓入口大廳
園區的主入口位于南部的科翔路,一座大型的室外臺階和坡道直通主樓。主樓略微向地塊內退進形成一座寬大的前廣場。廣場上的水池將人們引導至建筑的內庭,其中一半部分位于雨蓬之下,構成一座入口前廳。會議中心位于西側香山路入口,其內設有600人會議中心以及展覽活動空間。
其對面的建筑將作為企業檔案館使用。主樓以東的另兩棟建筑內設辦公室、研發和電力調度控制中心,它們與斜坡上的食堂建筑一起構成了園區的中心區域,若干下沉的陽光中庭令這里的空間別具吸引力。園區東側為體育設施以及員工宿舍,也可為訪客提供住宿。
▼園區中央廣場和下沉光庭
▼設有中庭的辦公樓
▼連接食堂和辦公樓的空中連廊
▼辦公樓前廳
項目圖紙
▼總平面圖
▼主樓剖面,可見中庭和入口大廳
▼首層平面
▼四層平面
設計競賽:2011年一等獎
設計:曼哈德·馮·格康和施特凡·胥茨以及尼古拉斯·博蘭克
競賽階段項目負責人:西蒙·施艾特
競賽階段設計團隊:何曉華,徐吉,海倫娜·凱什爾,秦煒,提洛·賽門,張璇
園區面積:180,694 m2
總建筑面積:356,670 m2
建設周期:2011 – 2016
.END.
注:本文轉載自gooood谷德設計網,版權歸原作者所有。

