拉開沱牌酒廠之旅的序幕 - 舍得文化中心,四川
作者:gooood谷德設計網 來源:gooood谷德設計網
位置+基地
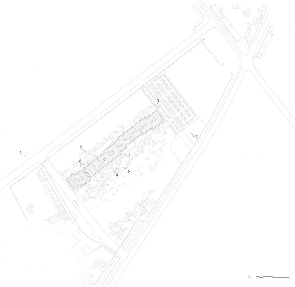
距離成都和重慶均為二百公里左右的沱牌鎮是四川的一個企業小鎮,是中國老字號酒廠舍得酒的釀造基地。或許因為悠靜的地理位置,沱牌鎮似乎同時保留了中國60-70年代工業城鎮和鄉村聚落的氛圍。文化中心坐落在舍得生產區的門前,與涪江和一所公園隔路相望。
▼鳥瞰:由生產區看東南側的公園和涪江
▼舍得文化中心西北側生產區
功能
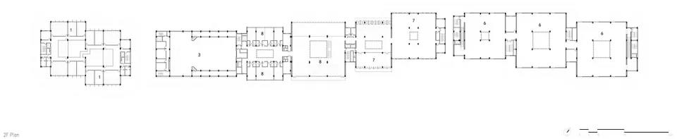
文化中心融合了多種功能,包括酒文化博物館、賓館、宴會廳和研發中心等,為游客們拉開了酒廠之旅的序幕。
▼文化中心東側
▼主立面
▼遠看北立面
▼東南側立面
▼大堂立面
▼體驗中心與配套辦公樓之間
設計策略
經過調研,我們意識到沱牌鎮吸引游客的秘訣不僅在于名酒,也取決于其純凈的自然景色和寧靜的地域氣質。我們的設計試圖通過保留這些品質來吸引渴望遠離都市喧囂的人們。
文化中心綜合體被視作連接工業園區與自然景觀的紐帶,其建筑空間由一系列帶內院的館所以線性排列的方式組成,而形式語言則由深檐和木板墻等低調的本土化詞匯所構建。
▼透過竹林看三層客房
▼辦公樓立面
▼辦公樓南側山墻
▼從景觀草坪看南立面
▼景觀水池看南立面
▼三層俯瞰內庭院
▼三層客房外廊夜景
▼宴會廳立面
▼展廳立面
▼展廳立面細部
建筑剖面
館所的斷面中,無梁混凝土樓板從中部朝兩側懸挑而出,好擬一把張開的傘。這把“傘”從檐口到中心處逐漸由薄變厚,并在最厚的區域承擔藏匿暖通管道的需要。
▼大堂后景觀臺階與水景
▼傘式結構體系
▼無梁斜面清水混凝土屋頂
▼展廳
▼頂層客房區休閑空間
▼頂層客房區庭院
▼雙層挑檐
▼板墻立面
▼板墻立面細部
▼深檐下的格柵窗細部
項目圖紙
▼場地平面圖
▼1層平面圖
▼2層平面圖
▼3層平面圖
▼南立面圖
▼剖面圖
地點: 四川省沱牌鎮
項目團隊: 梁小寧,黃舒怡,張博文,柳超; 室內設計: Simon Lee,曾湘燕,張敏,李帥
建筑面積: 22592 M2
建筑層數: 地上3層 地下1層
設計時間: 2017
竣工時間: 2019
.END.
注:本文轉載自gooood谷德設計網,版權歸原作者所有。

