山東日照1971研學營地舊學校改造
作者:建日筑聞 來源:建日筑聞
© 大可設計
此次改造設計是將基地原有日常教學教室改造為1971研學營地的學生住宿空間,在滿足住宿功能需求的同時,不破壞舊時學堂的記憶成為此次設計的核心。
© 大可設計
© 大可設計
© 大可設計
陳疃鎮中學學堂最初由當地村民自發修建,就地取材,共同出資建造的而成。近幾年由于各種因素現老建筑不能滿足當下學校建設要求,被新中學代替所荒廢。甲方依托政府打造一個綜合性青少年學生研學教育營地并對現有的建筑群進行升級改造讓其繼續為學生服務。
© 大可設計
© 大可設計
原有建筑結構形式多為磚木結構,紅磚屋身、木框架屋頂,上鋪紅瓦。為了更好的傳承老建筑的歷史紋脈,在改造中將紅磚作為主要材料,沿用傳統砌筑方法,將老建筑與新改造部分緊密融合在一起,使整個建筑群更加統一。
© 大可設計
© 大可設計
© 大可設計
營地入口空間對原入口拆除重新設計,打造一個獨特景觀入口空間,特有紅磚砌筑 “1971研學營地”幾個字代替了普通的金屬字體張貼,讓其與整個空間形成一個完整體。
© 大可設計
對原有紅磚建筑群進行重新梳理,將破舊嚴重的小空間建筑進行拆除,保留主要建筑空間。
© 大可設計
© 大可設計
© 大可設計
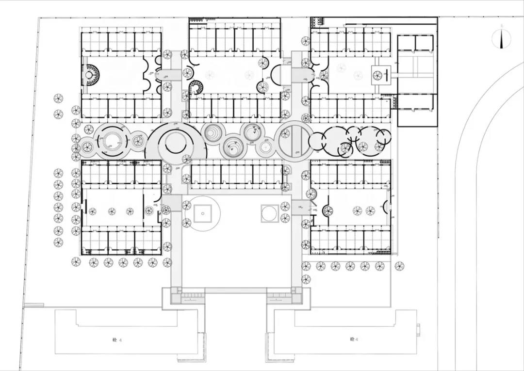
我們將保留的建筑空間重新組合,形成五個獨立的院落空間和一個休閑趣味景觀帶,繼續沿用紅磚作為建造的主材料來整合空間氛圍。在尊重建筑現狀的基礎上運用圓形元素配置每個庭院入口的專屬空間,增加其趣味性和體驗性。
© 大可設計
© 大可設計
© 大可設計
景觀帶-我們用大小不一的圓將條形景觀空間串聯起來,形成三個不同的休閑趣味景觀場所:西側下沉式的篝火聚會場所、中間環形小丘小道、東側圓形迷宮墻。
© 大可設計
© 大可設計
室內改造空間-原木框架屋頂改為鋼結構并將增加高度,滿足住宿空間的光照需求,提升空間亮度。
© 大可設計
© 大可設計
© 大可設計
© 大可設計
項目圖紙
總平面圖
景觀帶
大門平面及立面圖
門衛立面圖
項目信息
建筑師:DK大可建筑設計
地址:陳疃鎮文化路3號,東港區,日照,山東,中國
主創建筑師:楊攀
設計團隊:高浩軍 王學藝
業主:1971 研學營地
建筑面積:11050.0 平方米
項目年份:2019
攝影師:大可設計
.END.
注:本文轉載自建日筑聞,版權歸原作者所有。

