Lorena 公寓,植物與建筑共生 / Lucia Manzano Arquitetura + Pa
作者:建日筑聞 來源:建日筑聞
© Evelyn Müller
Lorena 公寓旨在將建筑與景觀相結合,為巴西圣保羅這個大都會的中心地帶增添一抹綠色。對于這些515平方米的復式公寓來說,公共區域內的和私人空間內的花園都同樣重要。
© Evelyn Müller
© Evelyn Müller
© Evelyn Müller
景觀和建筑的關系是相輔相成的。當花園與地面位于同層時,室外的花園便是內部建筑的延伸。綠色作為一種視覺元素,它使該公寓的空間變得更加私密化,即使這里綠植的高度與通常花園中的不同,它仍制造出一種整個公寓都被花園包圍的氣氛。
© Evelyn Müller
© Evelyn Müller
該復式公寓有許多社交區域,包括相連的起居室和陽臺。室內是沒有承重墻的開放式平面,這讓空間的使用變得靈活。公寓內的4間臥室均有上下兩層樓的空間,并都帶有獨立的陽臺。
© Evelyn Müller
© Evelyn Müller
© Evelyn Müller
底樓和屋頂是公共區域。底樓開闊的空間被花園環繞著,有一個露天泳池位于公寓的背面。屋頂上除了社交空間外,還有大片的花園綠植,從它們身后透來的是圣大保羅的都市風景。
© Evelyn Müller
© Evelyn Müller
© Evelyn Müller
為了容納大量的植物種類,該公寓的結構項目是與景觀項目一同進行的。外立面陽臺上所展示的綠植花壇其實是由70厘米大,60厘米深的邊溝梁兼任的。而在底樓和屋頂使用倒梁是為了能將綠植植入更深的種植箱中。
© Evelyn Müller
© Evelyn Müller
© Evelyn Müller
© Evelyn Müller
在該公寓的景觀項目中,花園主要由大西洋森林當地的綠植、果樹和土生樹木組成。這使得公寓能更好的融入環境,能吸引更多的當地動物(鳥類和昆蟲類),同時也能減輕維護的負擔。在公寓前面有一塊自然土壤的區域,較高大的樹木便種于此。
© Evelyn Müller
© Evelyn Müller
© Evelyn Müller
© Evelyn Müller
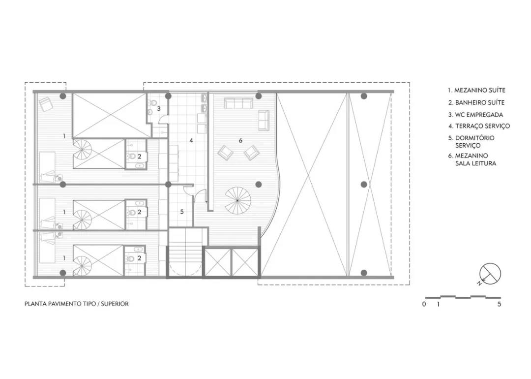
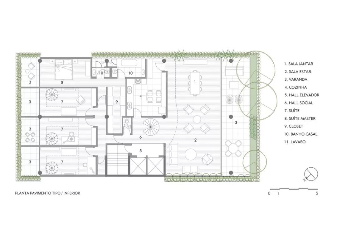
項目圖紙
平面圖
立面圖
剖面圖
項目信息
建筑師:Lucia Manzano Arquitetura + Paisagismo
地址:Alameda Lorena, 670 - Jardim Paulista, 圣保羅,巴西
面積:2600.0 m2
項目年份:2017
攝影師:Evelyn Müller
.END.
注:本文轉載自建日筑聞,版權歸原作者所有。

