建筑為紙,景觀為繪 - 重慶萬科翡翠公園
作者:gooood谷德設計網 來源:gooood谷德設計網
項目位于重慶中央公園片區。建筑設計運用現代的語言,重新演繹了傳統的空間精髓。總體布局遵循中軸對稱、前堂后院、多重院落的傳統空間格局。通過片墻、立柱、屋檐,限定出不同尺度和開放度的院落和框景。
項目外觀
主樓建筑遵循軸線對稱
主樓三面環水
前堂是兩層高的展示空間,內有一組具有序列感的三連展廳和舒適的洽談空間。主樓朝向城市一側的公共界面,用大面的金屬編織網和玻璃面,打造具有神秘感的藝術氣質,朝向內院一側的私密界面,用8.6m通高的大玻璃面,表達完全開放的自由態度。
主樓朝向內院的開放界面
后院用大挑檐的外廊,圍合出“四水歸堂”的精神*********場所。非日常尺度的半室外走廊,提供了交通、交流、休憩等多種生活功能的可能性。
內院的中心是以三棵精心布置的松樹為主體的巨大盆景。大尺度的挑檐為外廊上停留的觀眾框出天空的畫面,也為室內靜思的閑客描繪了一幅寧靜悠遠的松石畫卷。
后院,中心設有以三棵松樹為主題的巨大盆景
外廊通過延展的玻璃面、大尺度的灰空間、盆景式的內院,實現從室內到室外,由建筑到景觀無界限的自然延續。為了給近人尺度提供舒適的空間體驗,設計將大挑檐拆分成平屋面與坡屋面兩個層次。
內側平屋面吊頂與室內平接,弱化室內與室外的界限,外側坡屋面吊頂檐口略低,成為室內對內院景觀的取景框。
外廊
平屋面與坡屋面結合弱化室內外界限
立面設計遵循最純粹的“線,結合面,形成體”的建筑生成邏輯:用硬朗的立柱和檐口線條,勾勒挺拔的建筑輪廓;用柔和的金屬肌理和通透的玻璃面,編織細膩的表皮;線與面圍合出簡潔而有力的幾何體量。
通過剛與柔、虛與實的對比,來表現建筑的現代張力。
建筑體量由簡潔的線、面構成
外輪廓收邊的金屬線條全部為定制產品:大到立柱、檐口、腰線,小到底部收邊、門套,以達到極致挺拔的效果。
定制的金屬型材與設計所追求的力量感和簡約美高度契合,通過交接處的細節設計,來展現設計者對于使用者的活動體驗的關注,以及建造者精湛的施工工藝。
外輪廓采用金屬制品收邊
主樓三面環水,外墻底部與水面的交接處設計了倒三角形的收邊線條,將主樓輕盈地托起,營造出懸浮于水面上的視覺效果。
外框的立柱落于水中,水面以上外飾鋁板,水面以下外包不銹鋼板。隨著水面的漣漪變化,不銹鋼板會將光影的韻律折射在建筑之上。
樓梯仿佛浮在水面上
建筑細部
主樓金屬編織立面細部
吊頂作為立面設計的重要部分,通過劃分的尺度變化,起到限定空間的效果。內院外廊的吊頂使用了大量的超大板,單板長3m,最大寬度2.3m,鋁板間嵌有30mm的不銹鋼條。
超大的板材和復雜的細節,對施工的平整度提出了挑戰,通過加厚板材、增加龍骨密度、現場安裝的反復調整,最終呈現出平整的效果。
吊頂細部
一方面通過實現的技術方式,讓簡單的設計具有豐富的細節。另一方面通過理性的解構重組,將復雜的設計清晰地表達出來。內院三面圍合的大挑檐在體量上與主樓脫離。
由于挑檐的結構層次復雜,因此在其側立面的設計中,將雙坡屋面、平面吊頂、坡面吊頂、檐口線條等多種元素,經過拆解和整合,將無機的形狀轉化成有機的形態,以表達“形式體現結構”的設計邏輯。
整體鳥瞰
項目中最重要的展品,是由建筑、景觀、室內相互滲透形成的藝術空間。在這個展品中,“建筑為紙,景觀為繪”,其所展現的空間會隨著取景位置的不同和一日間的光影變化,給使用者帶去不同的感官體驗,成為翡翠公園中最具有魅力的藝術品。
室內
室內走廊
旋轉樓梯
洽談區
泳池
項目圖紙
建筑生成圖
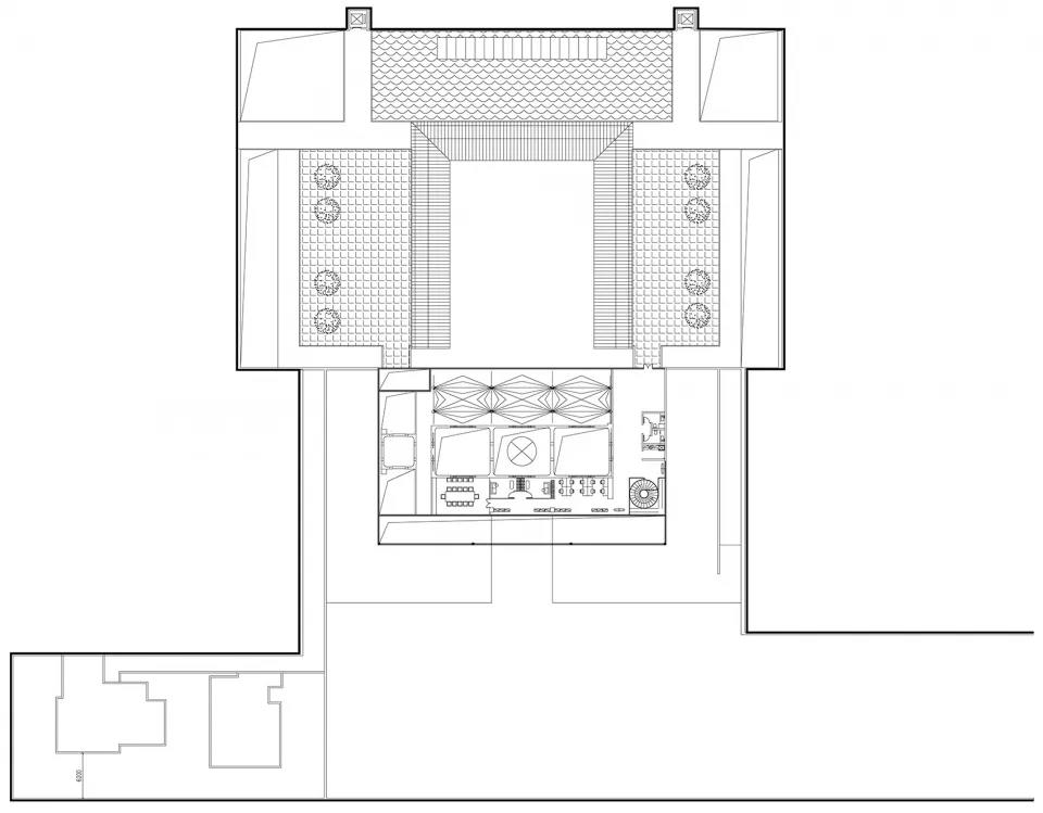
一層平面圖
二層平面圖
屋頂平面圖
立面圖
剖面圖
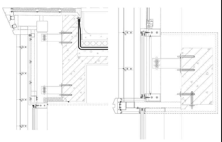
金屬表皮分解示意圖及細部
墻身細部
項目名稱:重慶萬科翡翠公園
設計方:上海日清建筑設計有限公司
聯系郵箱:L381282342@163.com
項目設計 & 完成年份:2018.12
主創建筑師:任治國
設計團隊:楊勇,張璐,符雪晴
項目地址:重慶渝北區公園西路與蘭桂大道交匯處西北角
建筑面積:2728㎡
景觀設計: 北京創翌善策景觀設計有限公司
.END.
注:本文轉載自gooood谷德設計網,版權歸原作者所有。

