獅子國際幼兒園,一個自由, 健康, 環保的可持續性成長空間
作者:建日筑聞 來源:建日筑聞
©張超
主持設計師程楓祺:“我們希望創造一個在室內空間,卻能打破室內空間常有的規整,有序的有趣的探索空間。靈感來自于小時候對于孩子們的“秘密基地”的想象,像是螞蟻窩在地下的結構一樣,由一個個小路徑聯系著一個個小空間,充滿樂趣。”
©張超
©張超
獅子國際幼兒園項目位于廣州市天河區的一個老社區內,周圍環繞著老式住宅。社區本身缺乏幼兒活動場地,這里的孩子們急需一個舒適安全的環境來學習與玩樂。
©張超
項目選址在一個僅有500平方米的老糧倉內,面對功能、空間與環境的多重矛盾關系,VMDPE圓道設計力圖通過設計,突破周邊環境和建筑空間的雙重限制,為老城區內的孩子們創造一個健康、環保的可持續性成長空間。
改造前 ©VMDPE
作為一個鼓勵幼兒自由探索的教育機構,獅子國際幼兒園遵循STEAM教育理念,即“科學,技術,工程,藝術,數學”多科學融合。教育理念與國際接軌,注重幼兒的全面協調能力發展,引領幼兒在自由探索的環境下,通過身體力行,培養自己的觀察能力、解決問題的能力、合作能力、思維能力、溝通能力,乃至啟發他們保護環境珍愛生命的社會責任感。基于此,VMDPE圓道設計公司將本案的室內設計與STEAM理念進行了無縫接軌。
©張超
©張超
拓展空間形態層級
項目改造前是一個老舊的倉庫,面積不大挑高近7米,存在單側空間開窗狹窄采光不足的問題。出于對兒童身體和心理健康的考慮,圓道設計決定揚長避短構建空間的大體格局——將空間分成兩部分,前側安排為課室,保證充沛的陽光;后側將原有開窗擴大,增加透光度,依靠空間的層高優勢,利用貫穿空間的大樓梯,劃分出更多可以用來發展兒童天性的自由探索空間。
©張超
©張超
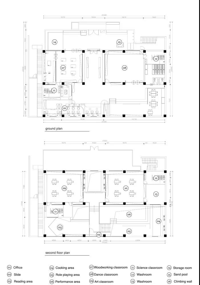
為了與國際教學標準結合,前側課室分為上下兩層:一樓設置木工課室和舞蹈課室,二樓設置美術課室和科學課室。通過合理的學習分區、多樣化的師幼互動突出STEAM多學科綜合教育的概念。后側的自由探索空間通過空間內的主樓梯,將滑梯、兒童閱讀平臺、開放式兒童烹飪教室及角色扮演區等分段式穿插在空間內。
©張超
同時,一樓課室的門在打開后營造出一個可以組織小型演出或集體活動的戶外空間。通過對空間區角的靈活化使用,在功能上對不同空間進行定位,豐富幼兒教育空間的教學內容,圓道設計在本案中的設計徹底彌補了中國國內幼兒教育空間一直以來功能性不明確且存在缺失的特點。豐富的室內活動區域,不僅可以誘發兒童的探索心理,也讓他們可以自由選擇,根據自己的興趣愛好進行主觀探索。
©張超
©張超
可持續設計模塊化
項目在設計上以原木色為主,用簡單樸實的設計向孩子們展示出設計師和教育者的可持續性環保理念。由于圓道設計專業從事幼兒教育空間的設計,因此格外注重空間的環保性和安全性,采用模塊化的設計方法是有效達到這一目的的手段。空間內所有的產品經過場外模塊設計生產后,再在現場進行拼裝組合,從而減少對場地的污染,降低對孩子的二次傷害,真正實現設計的可持續性目的。
©張超
©張超
圓道設計認為,模塊化設計手段可以有效控制設計和生產成本,通過定位空間的功能性,針對性地生產相關模塊,在設計之初就可以大體給甲方提供整個設計投資做出預算。雖然該項目處于中國的一線城市,但這種成本適中、健康可持續的模塊化設計對中國的二三線城市的教育空間市場而言具有很強的實用性和適用性。
©張超
兒童尺度精準細節化
在項目的細節處理上,設計師選擇對幼兒友好觸感的建材,家具根據各年齡層兒童的身高訂制尺寸,空間內所有的電源插座與開關的設計也都定位在兒童接觸不到的高度。
©張超
對于中國幼兒教育場地一直缺失的戶外使用空間,圓道設計也將室外不大的庭院功能化,以擴充孩子的活動區間。考慮到水、沙、石是幼兒最喜歡的自然元素,因此在戶外設計了沙池和攀巖墻,這種設計可以迎合不同年齡段孩子的成長需求。獅子國際幼兒園項目充分體現了對幼兒發展和使用的思考與設計,打造國際化幼兒教育成長空間的設計核心。
©張超
隨著近年來中國對幼兒教育的注重,圓道設計專業地做出了一個回應場地條件局限并符合品牌方國際化教育理念的幼兒園,它被寄望成為社區服務的一部分,以安全、健康、可持續為宗旨實現其社會職能。
©張超
項目圖紙
平面圖
立面圖
分析圖
項目信息
室內設計:圓道設計
地址:員村507創意園,天河區,廣州市,中國
主創建筑師:程楓祺
設計團隊:張健,盧育純
建筑面積:700.0 平方米
項目年份:2019
攝影師:張超、VMDP
.END.
注:本文轉載自建日筑聞,版權歸原作者所有。

