三代混居住宅 / BETA office for architecture and the city
作者:建日筑聞 來源:建日筑聞
© Ossip van Duivenbode
考慮到兩代人之間的關愛,一個由兩戶家庭組成的大家庭決定共同建造一座房子。雖然這對年輕夫婦已經住在城市,但祖父母住在農村,他們渴望搬回近郊的地方。
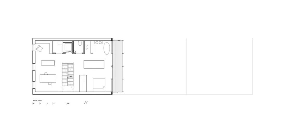
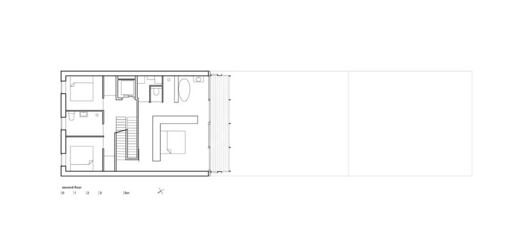
隨著時間的推移。對于這個迷你公寓建筑,我們設計了一個能夠適應隨時間變化的空間需求的概念。這對老夫婦住在頂層公寓里,從那里可以俯瞰整個城市的美景。這套公寓有電梯和水平的樓層,非常適合老年人居住。底層的公寓有一間辦公室,與花園直接相連,非常適合有小孩的工薪家庭。
© Ossip van Duivenbode
© Ossip van Duivenbode
© Ossip van Duivenbode
© Ossip van Duivenbode
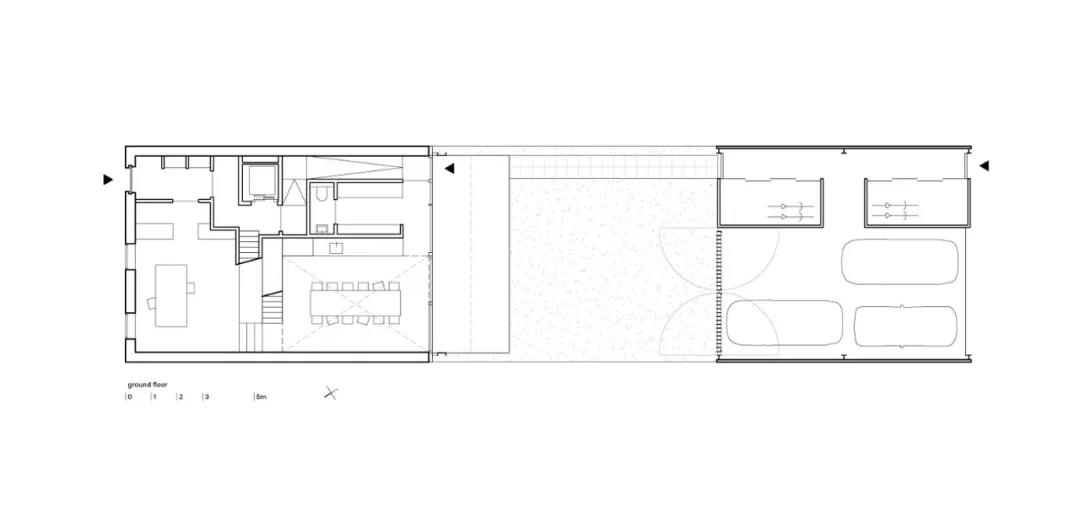
它占據了建筑的中心,而不是減少垂直交通的必要性。作為底層公寓中無處不在的雕塑元素,該系統逐漸轉化為建筑高層的一系列空隙。這個中央入口系統允許一個“多余的樓層”與任何一個公寓組合在一起。該空間最初用作最頂層公寓的客人空間,通過一些基本的技術修改,可以很容易地添加到低層公寓。
© Ossip van Duivenbode
© Ossip van Duivenbode
© Ossip van Duivenbode
開放空間與封閉空間。如同一個濾光片,建筑平面的漸變強調在建筑的對比立面上。北立面大部分是封閉的,以減少熱損失,減少繁忙街道上的聲音暴露。向南,建筑完全開放,最大限度地利用被動太陽能,并與室外連接。在兩個相反的立面之間,建筑的平面經歷了一個漸進的轉變,從北部的分隔,到南部的開放式和自由形式的元素。在這里,建筑以非正式的過濾式陽臺層結束。
南立面圖 ©Ossip van Duivenbode
北立面圖 ©Ossip van Duivenbode
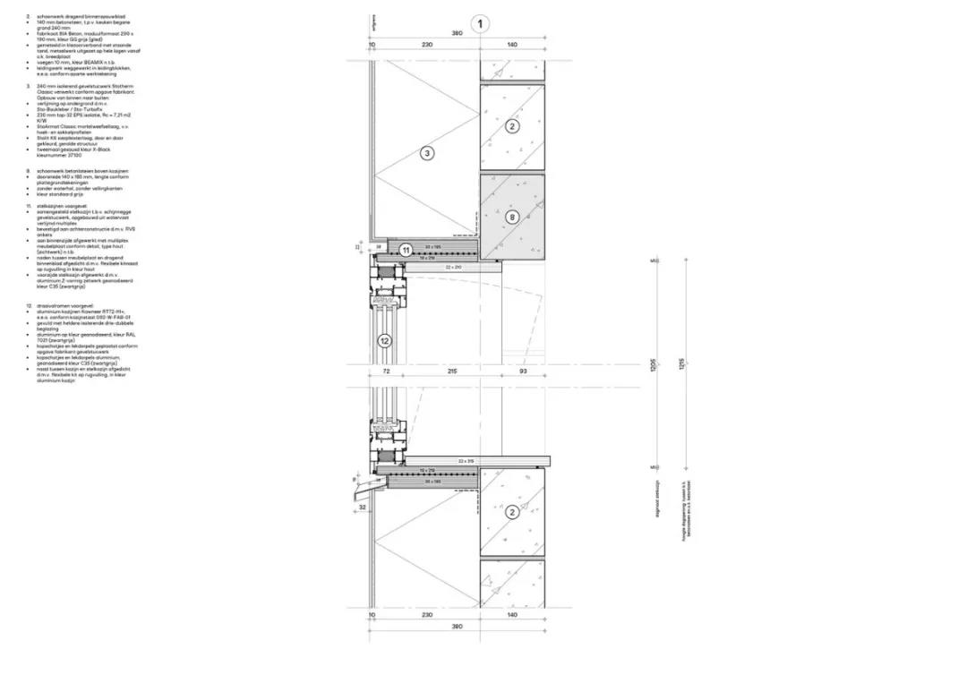
建筑材料和構成。在一個近乎基本的細節中,建筑傳達了它的構成,材料傳達了它們的目的。因此,南立面只覆蓋了最小的三層玻璃窗框,以強調建筑與室外的關系。其余的結構墻由大型混凝土砌體組成,包裹著高級保溫材料。在這些墻壁之間,裸露的混凝土板跨度8米,提供了一個清晰的平面,溫暖的木材元素定義了空間。建筑向北封閉而裸露,向南輕盈而脆弱,是一個對比的組合。
© Ossip van Duivenbode
© Ossip van Duivenbode
© Ossip van Duivenbode
項目圖紙
平面圖
剖面圖
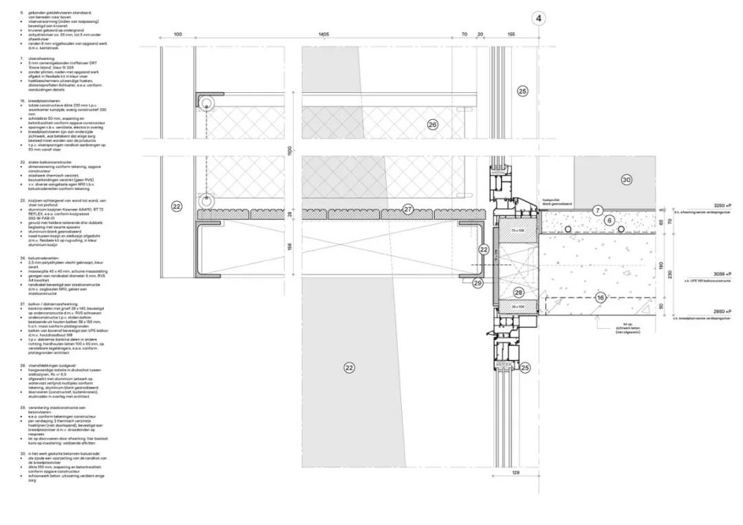
細節圖
分析圖
項目信息
建筑師:BETA office for architecture and the city
地址:阿姆斯特丹,荷蘭
主創建筑師:Auguste van Oppen, Evert Klinkenberg
建筑面積:450.0
m2
項目年份:2018
攝影師:Ossip
van Duivenbode
.END.
注:本文轉載自建日筑聞,版權歸原作者所有。

