木結構與幾何力學的結合 - 西郊賓館意境園多功能廳,上海
作者:gooood谷德設計網 來源:gooood谷德設計網
西郊賓館意境園多功能廳建于上海西郊賓館內部,該賓館占地廣闊、環境優美、樹木繁茂,自1960年建成以來即作為上海規模最大、等級最高的國家迎賓館,曾接待諸多國內外政要,舉辦若干重大事件與活動,在上海當代城市發展中具有重要的地位。
建筑外觀
2016年,加拿大自然資源部、BC省林業廳與西郊賓館所屬的東湖集團關于進一步推動木結構發展達成協議,并將規劃中的西郊賓館意境園多功能廳作為實踐案例,嘗試木結構建筑的建造、應用與推廣。
經由加拿大木業協會與東湖集團前期選址、討論及調研,推薦上海綠建建筑裝飾設計有限公司負責該項目建筑設計,并由加拿大木業協會提供結構設計、現場監督等多方面支持。總部位于溫哥華的Equilibrium Consulting Inc.也被聘請為結構計算和連接細節提供建議。
建筑立面
項目選址位于西郊賓館內一座湖畔東側,場地四周原有大量高大樹木及小山丘,景觀幽雅靜謐。項目采用單層膠合木結構建筑,形態謙遜低調,空間細膩豐富,與所處在的環境充分契合。
位于自然中的木結構建筑
半室外廊道,人們可以在此感受自然
木結構及其施工方式的選擇,使得整個建造過程盡量減少對場地的侵擾與破壞,最大限度地保留了原有的樹木及景觀氛圍。木材這種生態材料的運用,使自然、綠色、可持續發展的建造理念真正得以實現。
木材與自然相融合
西郊賓館意境園多功能廳總建筑面積約857平方米,主要功能為服務于賓館客人的就餐或會議場所及其附屬設施。建筑形式模擬了樹木生長的姿態,結構柱與三角形屋架自然交接、融為一體,柱網相互錯動,形成三維的空間結構,進一步強化了空間的趣味性。
分解軸測圖
屋面采用折板形態,尺度相等的折板相互錯落拼合,幾何邏輯清晰、簡練,所形成的室內空間靈動且個性鮮明,兼具層次感與秩序感,同時又帶有傳統建筑質樸優雅的韻味。折板屋面頂部設置天窗,改善林間建筑幽暗的采光條件,當陽光從天窗照射下來,仿佛穿過樹木的枝葉投下重重光暈。
模擬樹木生長姿態的木結構
結構細部
建筑以較小的建造代價,塑造了精彩的空間與迷人的形式,充分體現了木結構自然、溫暖的質感,以及幾何學與力學的美感。
建筑室內裝飾也以木材為主要材料,通過木格柵疏密相間的設置,呈現出中國古代寫意山水畫的線條與肌理,隱喻了中國傳統中對寧靜、悠遠的自然環境的向往,及其所代表的“天人合一”的理念與暗含的智慧與品德。
前廳
整幢建筑木材用量約212立方米,潛在碳減排總量約557公噸。其中屋頂和墻面填充材料用了SPF(云杉-松木-冷杉的組合材),總共57.81立方米,為建筑物增添保溫性和節能性。
主體框架使用了108.57立方米結構材級別的花旗松,這種木材的牢固性和木紋理,兼顧了建筑物的安全性和空間的美感。天花板和墻面的裝飾則用到了質地細膩的鐵杉,總共42.68立方米。
西餐廳,采用折板屋頂,空間中沒有立柱
天窗為室內提供自然采光
該建筑的設計始于2016年12月,建筑工程于2018年3月開工,2018年10月完工。在整個設計和施工過程中,加拿大木業的結構工程師在成本咨詢,結構計算,細節設計方面提供了積極有效的幫助, 現場質量控制等,以獲得建設的成功完成。
建筑在建造期間,即得到了業主與業界的充分認可。2018年中國國際進口博覽會在上海舉行,該大樓被選為主要的接待和宴會場所之一。2018年10月5日,************在此會見美國微軟公司創始人比爾·蓋茨,成為了該建筑落成后的第一批客人。
夜景
項目圖紙
總平面圖
一層平面圖
立面圖
剖面圖
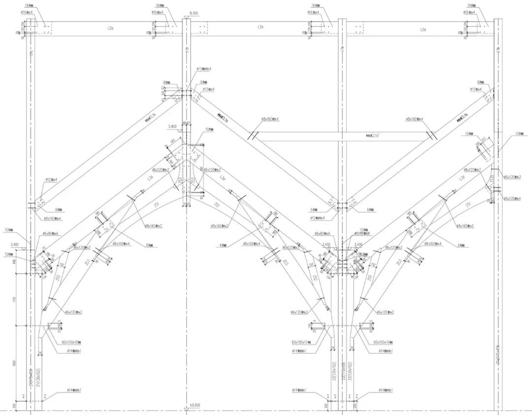
木結構詳圖
項目名稱:意境園多功能廳
項目地點:上海西郊賓館
建筑面積:856.64m2
設計單位:上海綠建建筑裝飾設計有限公司
設計總負責人:朱蔚蔚
建筑設計:何如、湯鳳龍、朱沙、高英
結構設計:付維舟(加拿大木業)、邢笑天(加拿大木業)
開發商:上海市東湖(集團)有限公司
攝影:蘇州昆侖綠建木結構科技股份有限公司
竣工時間:2018年10月
.END.
注:本文轉載自gooood谷德設計網,版權歸原作者所有。

