二沙文立方: 一座垂直的街道美術館
作者:建日筑聞 來源:建日筑聞
© 丘
© 丘
二沙島就是廣州的中央公園。環繞大片綠地,四周是高級住宅和博物館、音樂廳。在上世紀80年代初的規劃,整個島只有外銷房,一般市民是不能上島的。可見這個島優越的地理位置。上世紀90年代初政府開始在南岸打造“文化黃金海岸”,陸續建成省美術館、星海音樂廳等國內一流的藝術場館。二沙島成了廣州市民心中“陽春白雪”的代名詞。
垂直街道概念圖
文立方項目是“文化黃金海岸”在線最后的地塊,計劃由一個民間藝術基金會以自籌資金形式做一個“mini西九”—以物業經營資助文化藝術活動,形成自給自足的可持續發展模式。2010年接到這個項目的時候,建筑師正好還住在島上。晚上常常在南岸江邊散步。路的一邊是圍墻里的豪宅大院和博物館,黑洞洞的木無表情;另一邊是大榕樹下的“音樂會”,來散步吹江風乘涼的市民,常常三五成群圍聚在那些自彈自唱的街頭藝人身邊。
© 丘
© 丘
© 丘
這活生生就是Allan.B.Jocobs《偉大的街道》所描述的場景:“總有一些街道,要比其他街道更不一般——置身其間,你胸中了無掛礙,可以隨心所欲地做自己想做的事。”這里白天杳無人煙,一到傍晚就開始熱鬧非凡。“不是因為我們必須去那里,而是因為我們希望去那里”——這是Jocobs對偉大的街道的定義。文立方就在這條“偉大的街道”盡頭。怎么能讓“街道”的場景延續到項目里是建筑師想的第一個問題。
© 丘
© 丘
手繪分析圖
第二個思考的問題是面對周邊封閉式設計的建筑,如何創造一個有生機和凝聚力的社區?建筑師米笑想這個房子必須有吐納功能,所以從一開始就放棄點式單體建筑的總圖規劃,決定以包含內院的街廓式平面布局,組織展覽館、商鋪、餐飲、辦公、休閑、演出等等各種功能。內院向街道開放,變成圍護感很好的城市公共空間,把周邊的建筑整合成一個內聚性的社區。
© 丘
© 丘
第三個思考的問題是可持續發展。民間資金去做藝術公益舉步維艱,希望不僅節約基建成本,更要節約日后的運營成本。生態建筑,綠色建筑都是新興名詞,所有符合「常識」的傳統建筑都冬暖夏涼。南方地區最有效的是遮陽加通風。包含內院的平面對加強通風十分有利,能解決遮陽變能最大程度減低能耗。于是就有了這個憑常識計算出來的方案:在建筑的西南面懸掛一條緩緩爬升的外廓,作為西南立面的遮陽系統,把“偉大的街道”一直延長到天臺,帶你飽覽城市全景:向東是旭日東升的CBD珠江新城,向西是夕陽余暉下的舊城。一開始外廊的方案是斜坡,功能空間都朝向內院。這樣的處理無疑在外觀上似乎更具建筑的樣式感,但這樣一來,具有公共性的“街道”就同功能單元以及內院完全割裂,變得同周邊的建筑一樣,私有空間同公共空間有嚴格的等級,經緯分明,無法融合,難以形成富有生機的共享社區。
© 丘
© 丘
于是把街道放平,以不設門的開放入口和樓梯聯合各層,使內院和外走廊成為城市廣場及街道的延伸。為了吸引市民爬上5層高的觀景臺,每一層的外廓都通過平面的進退形成不同的“取景器”。
© 丘
有的時候是寬幅,有的時候是無邊。變化的風景引導出一條游走的路徑往返城市風光和靜謐內院。
順著基地西南展開的長達160m的弧形外廓,成為立面控制性的語言。如果忽略西北角因業主要求遮蔽廚房而設的鋁格柵,整個主立面幾乎可說是“沒有設計”。最終展廳、餐飲等等各種功能空間在整個外廓框架的控制下呈現各自獨立面目——這也許可以歸結為同時作為策展人工作多年的影響吧,總希望每一個個體都有各自的呈現。
© 丘
© 丘
外墻材質與色彩都沒有刻意同周邊建筑拉開反差。總覺得在一個過度精英化的社區,最重要在空間本體上實現無階級。
© 丘
項目剛完成的時候,剛好華南理工大學建筑學院孫一民院長在一次演講中談廣州騎樓,“我們完全不用關心它具體的語言,其形式可以是現代的,最重要的是生活。這個城市的生活已經被這些構筑物容納進來,也就是說騎樓只是起到了一個容器的作用,關鍵是這樣的容器,代表了哪些性格、哪些宗旨。”遮陽擋雨的交通空間、社交空間、文化空間、商業空間,我們最終在二沙島“文化黃金海岸”增添了一公里“騎樓”。
© 丘
項目圖紙
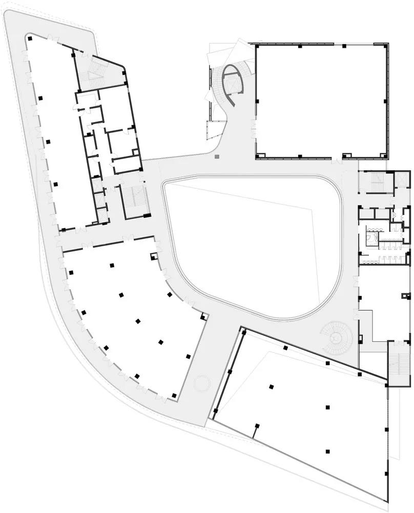
首層平面圖
二層平面圖
三層平面圖
四層平面圖
五層及屋頂平面圖
剖面圖
建筑師:扉建筑
地址:二沙島晴波路1號,廣州市,廣東省,中國
主創建筑師:米笑
設計團隊:李致堯、刁家俊、喻耀、宋定侃、岳靚
建筑面積:22550.0 平方米
項目年份:2018
攝影師:丘

