置身山水之間 - 杭州龍湖江與城售樓處 / 上海天華建筑設計有限公司
作者:gooood谷德設計網 來源:gooood谷德設計網
龍湖江與城項目位置正處于杭州市城市發展主軸,國家級創新區大江東產業聚集區的核心位置,交通便利,產業人群基數豐富,坐享錢塘江時代區域紅利。
項目位于在建7號北二路站地鐵上蓋,交通便利;集商務辦公、金融商貿、展覽展示、公共服務為一體,是新區功能和形象核心。
售樓處外觀
內向型圍合空間
項目利用周邊地塊挖土,抬高地基,使場地內形成自然的高差。沿城市界面,采用將地形與建筑緊密結合的地景建筑形式,結合自然場地的同時還融合了當地的文化、人文等元素。塑造堆坡式景墻,隔絕周圍不良環境。
植入功能體塊,形成內向型圍合空間,同時加以庭院、廊架、影壁等元素,豐富內部空間層次。使示范區在周圍喧囂的環境中依然可以獲得內部空間的寧靜。
鳥瞰圖,圍合的空間
形體生成
豐富的空間流線
示范區借鑒中式園林,采用景觀遞進和步移景異的設計手法,在有限的用地內創造豐富的空間感受。示范區由山門進入,山水影壁映入眼簾,進而轉入小庭院,通過水中步道到達售樓處。
空間流線分析
售樓處與樣板間中間通過下沉式庭院相連,起承轉合,一氣呵成,仿佛置身山水之間。五進院落,四重轉折,起承轉合,營造多重場景體驗。
輕盈舒展,拾級而上,首重見山
松柏影綽,月朗星稀,而后見壁
曲折婉轉,水影斑斕,次而見水
純凈的水面倒影出起起伏伏的屋面形式,穿孔板星星點點的肌理,給人以無限的遐想
水邊的庭院
水面上的石板步道
建筑形式語言
建筑形式語言和地域文脈結合,取意杭州夕照山的自然輪廓,售樓處屋頂的山形折板將建筑串聯成一個整體。
局部透空的處理,使建筑景觀互相交融。透過格柵的形式,使光影富于變化,塑造輕盈通透之感,營造舒適又愜意的空間。
從售樓處望向水景
穿孔金屬板營造獨特的光影效果
下沉庭院,折板屋頂將建筑串聯成一個整體
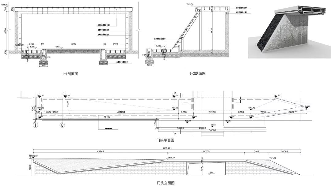
項目圖紙
總平面圖
軸測圖
項目圖紙
項目名稱:龍湖 江與城
項目地址:中國,浙江省,杭州市蕭山區
項目規模:6000平方米
竣工時間:2018.09
建筑設計:上海天華建筑設計有限公司
電郵地址: thapepr@tianhua.com.cn
景觀設計:MPG摩高景觀
項目負責:荊哲璐 段亮
設計團隊:倪永 楊裴 沈曉
建筑攝影:是然攝影
.END.
注:本文轉載自gooood谷德設計網,版權歸原作者所有。

