迪拜賈米爾藝術中心,波斯灣岸邊的純白 / Serie Architects
作者:建日筑聞 來源:建日筑聞
© Rory Gardiner
© Rory Gardiner
賈米爾(Jameel)藝術中心由總部位于英國的思銳建筑事務所( Serie Architects )設計,是一個一萬平方米的三層多學科空間,是海灣地區第一個非政府當代藝術機構。
© Rory Gardiner
受美術館啟發的綜合體包括1000多平方米的專用畫廊空間,加上300平方米的開放研究中心、活動及放映場地、屋頂露臺、一個餐廳、書店和設計室。該中心的適應性空間反映了賈米爾藝術組織(Art Jameel)對跨媒介和培養藝術家職業的多樣化規劃的承諾,因此畫廊被有意設計成各種大小和體積比例,以允許展覽、場地特定裝置和新命名展的靈活設置。
© Rory Gardiner
© Rory Gardiner
賈米爾藝術中心于2014年通過國際競賽授予思銳建筑事務所,最初的設想是一個由低矮柱廊包圍的系列形式。在怡人和社區尺度范圍內,該建筑的體量和空間性的靈感來自兩個區域的建筑傳統:早期的酋長國沙比住宅種以圍繞庭院的一系列房間為特色,以及以住宅與庭院的聚集為特點的馬蒂諾風格的城市規劃。通過幾何形式和花園的重復并置,中心設計的零星點綴的庭院,體現在內部空間和外部空間、藝術和自然之間連續分層的關系。
© Mohamed Somji
© Mohamed Somji
思銳建筑師事務所的負責人Christopher Lee解釋說:“我們與賈米爾藝術組織密切合作,傾聽他們的需求,用建筑理念回應他們的需求,并對需求進行提煉。呈現的建筑能夠適應廣泛的用途,并隨著它所服務的城市繼續發展。它作為一個背景結構,為城市中心的生活展開,而不是從視野中消失。圍繞庭院花園的畫廊和濱水的框景也可以創造休息和聯系的場景,同時為委托的裝置提供潛在的空間。
© Mohamed Somji
藝術中心的設計超越了靜態的白色立方體體驗,強調與周圍環境的聯系,在賈米爾藝術組織的規劃中體現了一種視角。賈米爾藝術中心坐落在一片延伸至迪拜河的狹長的土地上,它與迪拜標志性的摩天大樓天際線既相連又分離。柱廊在私密的畫廊空間和公共濱水長廊的社交生活之間創造了一個多孔的界面,邀請游客順著瀏覽空間。覆蓋畫廊的設計也服務于從一個單一的有利位置提供幾個空間的視線——無論是花園還是另一個展覽空間——不斷地在空間之間建立聯系,并在觀眾之間發起對話。建筑的表面融合了原始混凝土和半反射鋁覆層之間的相互作用,創造了一種微妙的微光,以回應周圍的水和大氣變化,同時它的集群形式創建了自遮陽庭院,并允許交叉通風。
© Mohamed Somji
© Mohamed Somji
庭院沙漠花園系列強調了建筑,確保藝術和景觀的交替接觸始終是建筑體驗的一部分,鼓勵休息的時刻。由著名景觀設計師Anouk Vogel設計,賈米爾藝術中心的七個花園裝置反映了當地和全球沙漠生物群落的具體情況,代表了33個物種。花園的特色是收集了來自世界沙漠的雕塑植物,而引人注目的植物紋理,微妙的礦物色調和不尋常的鋪裝為每個花園提供了一個獨特的特點。獨特的植被包括一些瀕臨絕種的植物,它們面臨著棲息地的喪失,而這些植物都是從被標記為要被破壞的地點單獨保存下來的;這種罕見的移植包括220歲至300歲之間的芝麻灌木。
© Mohamed Somji
景觀設計師Anouk Vogel表示:“植物是根據地質和氣候邊界生長的,而不是根據政治邊界。”這些獨立的花園連接著全球,靈感來自世界上主要的沙漠:阿拉伯、澳大利亞、奇瓦瓦沙漠、納米比亞、索科特拉和索諾蘭沙漠,以及馬達加斯加的多刺森林。它們強烈而截然不同的表達方式并置在一起,增強了每個空間的特色,呼應了藝術中心對融合和多樣化社區的關注。
© Simon Whittle
這些花園也為在開幕式上首次亮相的一系列主題展和干預活動提供了靈感。屋頂露臺上是賈米爾藝術組織命名主題展的獲獎作品:科威特藝術家Alia Farid和Aseel AlYaqoub的雕塑裝置作品,名為《相反的生活:一個專為樹木設計的植物光花園》(against Life: A Botanical Light Garden)。Shaikha Al Mazrou為藝術家的花園呈現了一系列命名項目中的第一個,維克拉姆·迪韋查(Vikram Divecha)的雕塑作品將在未來幾個月安裝在花園空間。
© Mohamed Somji
柱廊是一個活躍的社交空間,構架出花園和活躍海濱長廊。花園和藝術的結合繼續延伸到Jaddaf濱水雕塑公園,這是位于城市中心的第一個露天藝術公園,也是賈米爾藝術組織和迪拜控股的合作項目,后者是更廣闊的Jaddaf濱水地區的主開發商。該公園由屢獲殊榮的阿聯酋建筑工作室ibda design設計,作為連接圍繞Jaddaf濱水區的公共濱海和賈米爾藝術中心的橋梁。它的起伏形式圍繞著大型設施形成曲線,呼應了建筑本身周圍的濱水流動。公園里擺放的首批雕塑作品包括海倫·布魯曼菲爾德(Helaine Blumenfeld)、塔林·黑茲巴(Talin Hazbar)和拉蒂法·賽義德(Latifa Saeed)、穆罕默德·艾哈邁德·易卜拉欣(Mohammed Ahmed Ibrahim)、大衛·納什(David Nash)、斯拉夫(Slavs)和塔塔爾(Tatars)的作品。
© Mohamed Somji
賈米爾藝術組織的主管Antonia Carver 說到,“我們的第一個永久性空間,賈米爾藝術中心為賈米爾藝術組織開啟了一個新的發展階段,使我們能夠擴大我們的項目,發展新的伙伴關系,并與廣泛的觀眾分享收藏。我們與思銳建筑事務所和ibda design緊密合作,將藝術中心和公園開發成靈活、開放的空間,滿足藝術家和觀眾的需求。建筑師的合作和創新方式建立了賈米爾藝術中心,以履行其使命——展示動態的、發人深思的展覽,作為教育和研究活動的中心,并繼續與當地、區域和國際藝術家、策展人和組織合作。
© Rory Gardiner
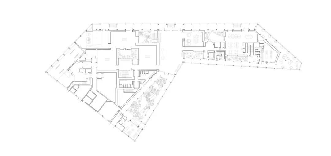
項目圖紙
首層平面圖
一層平面圖
二層平面圖
三層平面圖
四層平面圖
剖面圖
項目信息
建筑師:Serie Architects
地址:迪拜, 阿聯酋
首席建筑師:Christopher Lee, Principal of Serie Architects
其他參與者:Anouk Vogel(作為設計賈米爾藝術中心七個花園裝置的景觀建筑師) ibda design (總部位于阿拉伯聯合酋長國的建筑事務所,設計了作為連接Jaddaf濱水區與賈米爾藝術中心的Jaddaf 濱水雕塑公園)
建筑面積:10000.0 平方米
項目年份:2018
攝影師:Mohamed Somji;Rory Gardiner;Simon Whittle
.END.
注:本文轉載自建日筑聞,版權歸原作者所有。

