紐約最高天橋相連的新地標塔樓 - 美國銅大廈,曼哈頓 / SHoP建筑事務所
作者:gooood谷德設計網 來源:gooood谷德設計網
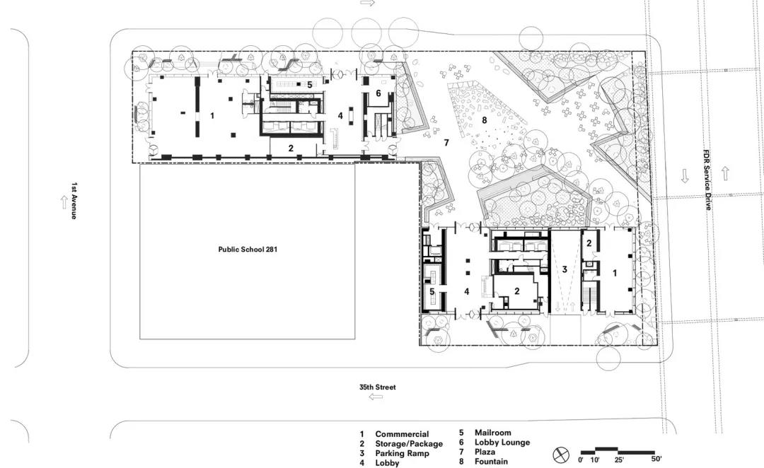
SHoP建筑事務所去年春季完工的美國銅大廈已經成為了曼哈頓東區的一個充滿活力的新地標,這里曾是一個廢棄的發電廠(第一大道與35,36街交匯處)。
這兩座建筑單體由一座3層樓高的天橋相連,提供了一個有別與同社區內其他住宅樓的獨特住宅生活體驗。
建筑外觀,坐落于曼哈頓林立的高樓間
美國銅大廈的設計借鑒北面聯合國大樓的體量比例,兩個銅制的塔樓在中間彎曲,在天橋上相遇,為城市的一個被忽視的區域帶來了新的活力。
美國銅大廈的天橋是紐約市最高的天橋,也是數十年來首座建造的高空天橋,為塔樓的761套公寓提供了小型游泳池,休息室和其他共用設施。20%的公寓是以低于市場價格的價格進行出租。
建筑由兩棟彎曲的塔樓及高空連橋組成
建筑的體量與周邊大樓一致
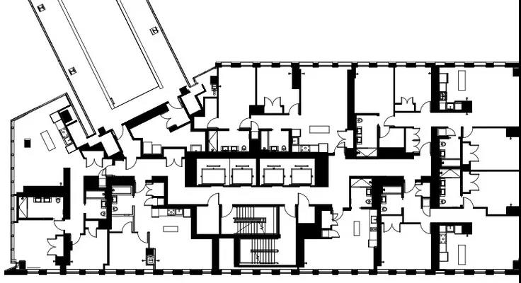
兩個建筑單體分別為41和48層,總共有761套出租住宅公寓。 所有這些公寓都配備了公寓品質的裝修,定制的設計增強了每個單元的獨特功能。
此外,客房均設有落地窗,為每一個主要方向都提供了暢通無阻的視野。例如東面的東河,南面的世貿大廈,西面的帝國大廈以及背面的聯合國總部。
兩棟塔樓,彎曲處由天橋相連
落地窗和玻璃幕墻提供全方位的景觀視野
SHoP建筑事務所在同時滿足嚴格的建筑占地限制,以及當下所批準的ULURP計劃設定下,探索了多種雙塔的體量與形態的設計。
項目最終的設計是兩座相互傾斜的建筑單體,在相鄰最近的位置處由天橋連接。
連橋近景
社區共享空間分別位于整個項目的三個層面(高度):在項目一層的附屬廣場上,有食品超市和通往相鄰河畔公園的通道;在三層的天橋內,則是租戶和客人的休閑中心,在天橋中還包括一個游泳池;在北塔的樓頂上,有一個無邊緣的室外游泳池和一個樓天酒吧,提供了一個絕佳的位置俯瞰整個城市。
通過這些具有多層位的社區空間,SHoP以及我們的客戶(同時兼施工經理)JDS Development Group,渴望為居住在美國銅大廈里的人們營造一個真正賓至如歸的感受。
銅立面細部
SHoP還完成了大廳和公共區域的室內設計,以及包括木制品,櫥柜等等。第二個游泳池和休息室位于東塔的屋頂上,而西塔的頂部則設有應急發電設施。
由于項目本身位于超級風暴桑迪期間被淹沒的河邊地區,該建筑群的設計可實現在突發自然災害的情況下,電力可自給自足,并為每個單元提供內部電力。
大廳
游泳池
健身房
夕陽余暉中的大樓
夜景
項目圖紙
一層平面圖
連廊層平面圖
.END.
注:本文轉載自gooood谷德設計網,版權歸原作者所有。

