連接城市和碼頭斷層的“楔子” - 云陽四方井服務建筑,重慶
作者:gooood谷德設計網 來源:gooood谷德設計網
云陽,作為一個因三峽建設而重新選址重建的移民新城,城市與水岸的關系,是長久討論的話題。2015年云陽市政府開展了云陽縣城庫岸環境綜合整治工程,在沿長江南北兩岸及澎溪河東西兩岸35公里的岸線上,疏通濱水空間,利用景觀公園、廣場、步道,形成連貫的濱河慢行系統。
從澎溪河上看建筑
我們負責在長江與澎溪河兩江交匯處的三塊用地上設計三個濱江服務建筑:天宮包、漁宴館和四方井,串聯沿岸四方井碼頭公園、雙江大橋公園和木魚包公園,與云陽市民活動中心共同成為濱江文化公園中的重要公共節點。
項目區位圖
天宮包用地被商業、居住用地包圍,設計以緩坡的形式將建筑體量融于自然山體的起伏之中。四方井碼頭是深入江面的一個三角洲地形,場地包括漁宴館和四方井服務建筑項目。漁宴館在三角形的頂部,四方井項目位于漁宴館的后面。在這些建筑中,四方井服務建筑是首先落地的項目。
西北向鳥瞰,項目被商業居住用地包圍,融于起伏的山體中
四方井用地呈不規則多邊形斜坡,南高北低,由城市向江面跌落,高差最大達到8米。如何順應濱江地勢布置建筑從而達到最優的景觀視野,讓服務建筑成為連接城市和碼頭的斷層的“楔子”,成為了我們的首要考量。
東北向鳥瞰,建筑連接城市和碼頭
設計草圖,提供最佳景觀視野
澎溪河寬闊的河面上,遠處的層疊山脈延伸入江水中,在基座之上,四方井服務建筑的坡屋頂沿著江面漂浮展開,融入遠處山峰的輪廓。
從澎溪河對岸看建筑
四方井碼頭公園
設計以盡量減少土方量為原則,梳理了場地的高差,將建筑的南側兩層切入場地,東、西側局部一層切入場地,形成建筑雙首層“基座”。
建筑切入場地,形成雙首層“基座”
其中首層與北側濱江景觀帶相接,二層與西側城市道路相接。基座的建造轉換了地景,提供了觀看江景的平臺,如同伍重面對悉尼港,屋檐與基座也成為我們解答風景與場地這一命題的答案。
從基地北側看建筑
檐下的入口
設計對“四方井”這一概念進行抽象變形,將建筑形體整理為順應地勢地形的一個多邊形院落。進一步對屋頂進行切割,將完整的屋面打散成數種不同的傳統坡頂形式,并在面向澎溪河的界面形成兩個開口,成為下沉庭院和觀景平臺。
四方井概念生成
面向澎溪河的開口,可以欣賞對岸景色
基座上挑出的屋檐
四方井服務建筑采用傳統建筑的梁柱體系,并因循現代結構力學對梁柱的比例關系進行了調整。在建筑的材料選擇上,設計以傳統的木材和青磚為主,局部采用金屬,玻璃及陶瓦等現代材料。
分解軸測圖
二層內院
坡屋頂沿著江面漂浮展開
夜景
剖軸測圖
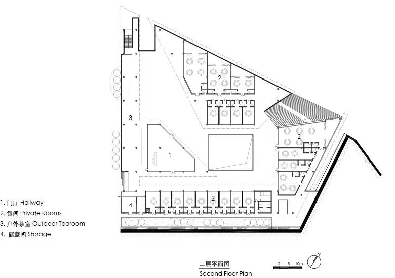
平面圖
立面圖
剖面圖
項目名稱:云陽四方井服務建筑
建筑公司:深圳湯樺建筑設計事務所有限公司
聯系郵箱:tanghua_studio@163.com
項目設計& 完成年份:2015 /
2018
主創建筑師:湯樺
設計團隊:劉柳,楊原,李文杰,黃真吉等
項目地址:重慶市云陽縣雙江鎮澎溪路29號
建筑面積:8012.99㎡
攝影師:存在建筑建筑攝影
施工圖單位:中煤科工集團重慶設計研究院有限公司
客戶:云陽縣城市開發投資(集團)有限公司
原文編輯:戴瓊,葉毅喆,鄭晨曦
.END.
注:本文轉載自gooood谷德設計網,版權歸原作者所有。

